Close
Family Home in a Quiet Court Setting
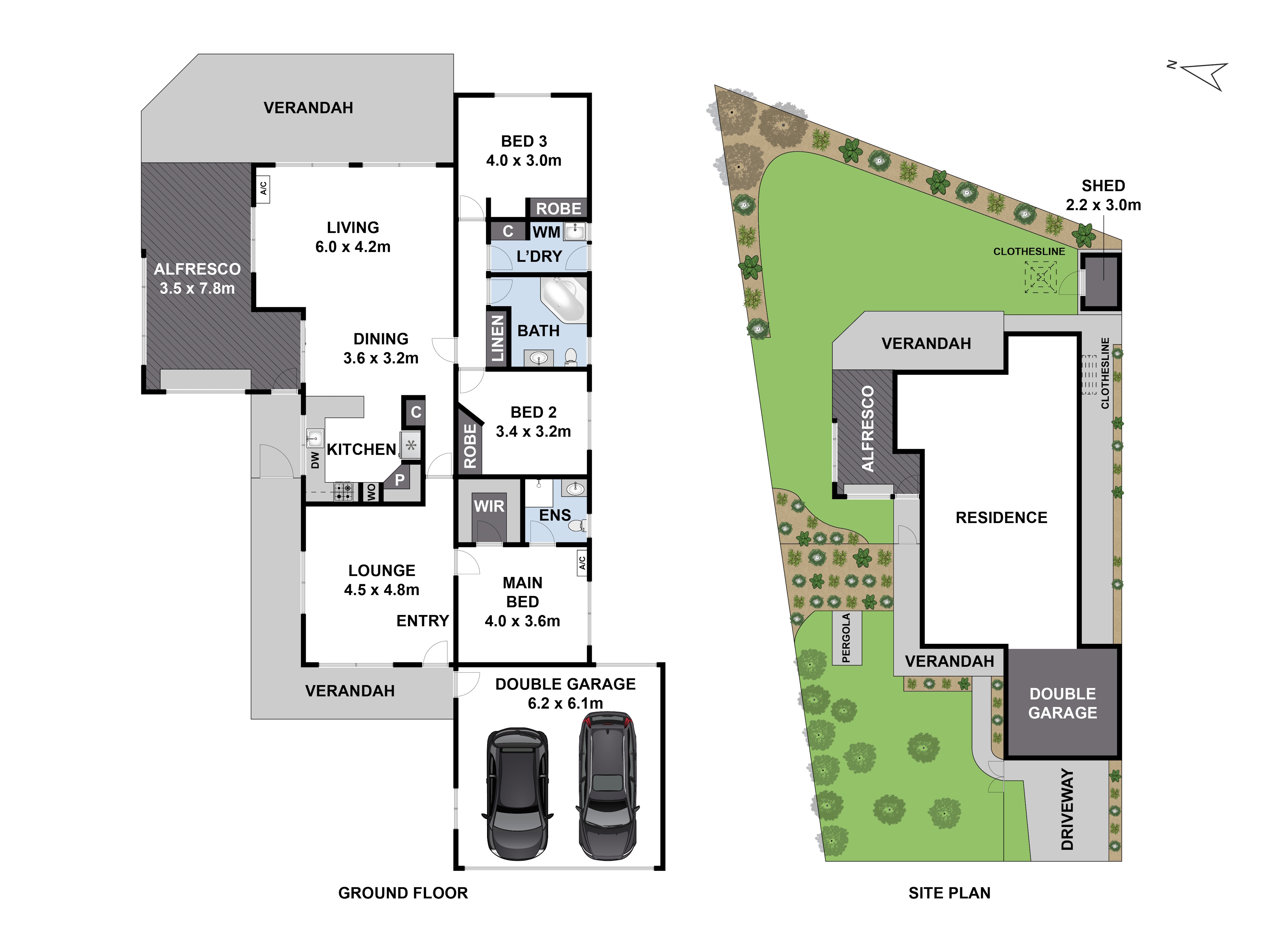
Nestled in a quiet court in the heart of St Albans Park, this brick home is private and perfectly designed for families, with open-plan living space, outdoor entertaining and a fantastic yard to enjoy.
The thoughtfully designed floorplan features a front living room alongside the main bedroom, complete with walk-in robe and ensuite. At the heart of the home, the open-plan living area features a functional kitchen with stone benchtops, dishwasher and gas cooktop. This space extending out to an expansive undercover alfresco area and the perfect spot for year-round entertaining.
Two additional bedrooms with built-in robes, a family bathroom all located off a separate hallway.
Situated on an expansive block, the property boasts a double garage with a rear roller door, established garden areas with fruit trees, open play space, and a garden shed, all within a secure, gated yard.
Additional features include a solar power system, ducted heating, two split systems, ceiling fans in bedrooms and living areas, a ducted vacuum system, security system, and ample storage.
Located close to Newcomb and Leopold shopping centers, schools and amenities, this home offers the ideal blend of convenience and space.
- ALL interested parties must register for inspections using the Get in touch link for www.realestate.com.au or - the Contact Agent/Enquire links via www.gartland.com.au or www.domain.com.au.
- Inspections are subject to cancellation or change with minimal notice.



















