Close
The Perfect Place To Nest Or Invest
Located a short walk to the Sanctuary Estate playground, this Glenvill Homes residence is the perfect choice for first homebuyers and investors alike.
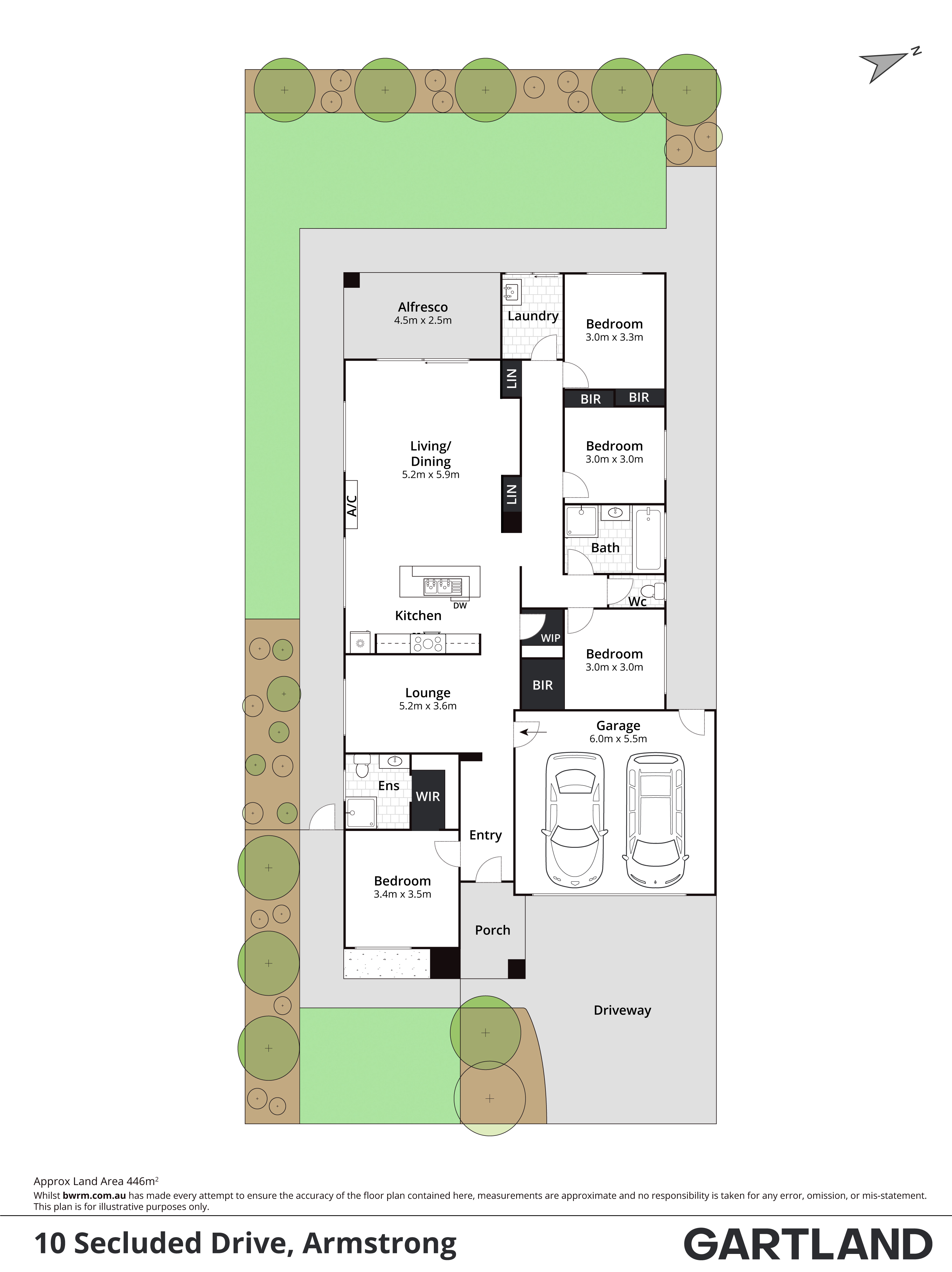
The open plan living/dining/kitchen zone creates a beautiful setting, where you can relax on the couch or open the sliding door onto the covered alfresco area. This outdoor setting is ideal for the warmer weather, enticing you to kick back under the shade or soak up the sunshine on the lawn. The lounge could also be used as a dedicated kid's play space. The kitchen showcases stone benchtops, a walk-in pantry, and Omega stainless steel appliances (dishwasher and 900mm oven, gas cooktop, rangehood).
Zoned to the front of the home, the main bedroom features a walk-in robe and en suite. Three additional bedrooms with built-in robes are tucked away in a separate wing, close to the main bathroom and laundry. Ducted heating and a split-system air conditioner ensure year-round comfort. Beautiful gardens line the back fence, with the backyard providing a terrific play space for little ones. The home is currently tenanted until March 2023
The creek's walking trails are moments away for leisurely strolls, while a variety of nearby schools include Iona College Geelong and the Armstrong Creek School. Both Warralily Village and the Armstrong Creek Town Centre are close by for all your shopping and dining needs. Just jump in the car, and you'll soon be in the bustling hub of Geelong or exploring the region's finest beaches.
Currently leased at $1,868 per calendar month.




















