Close
Comfort, Style and Position
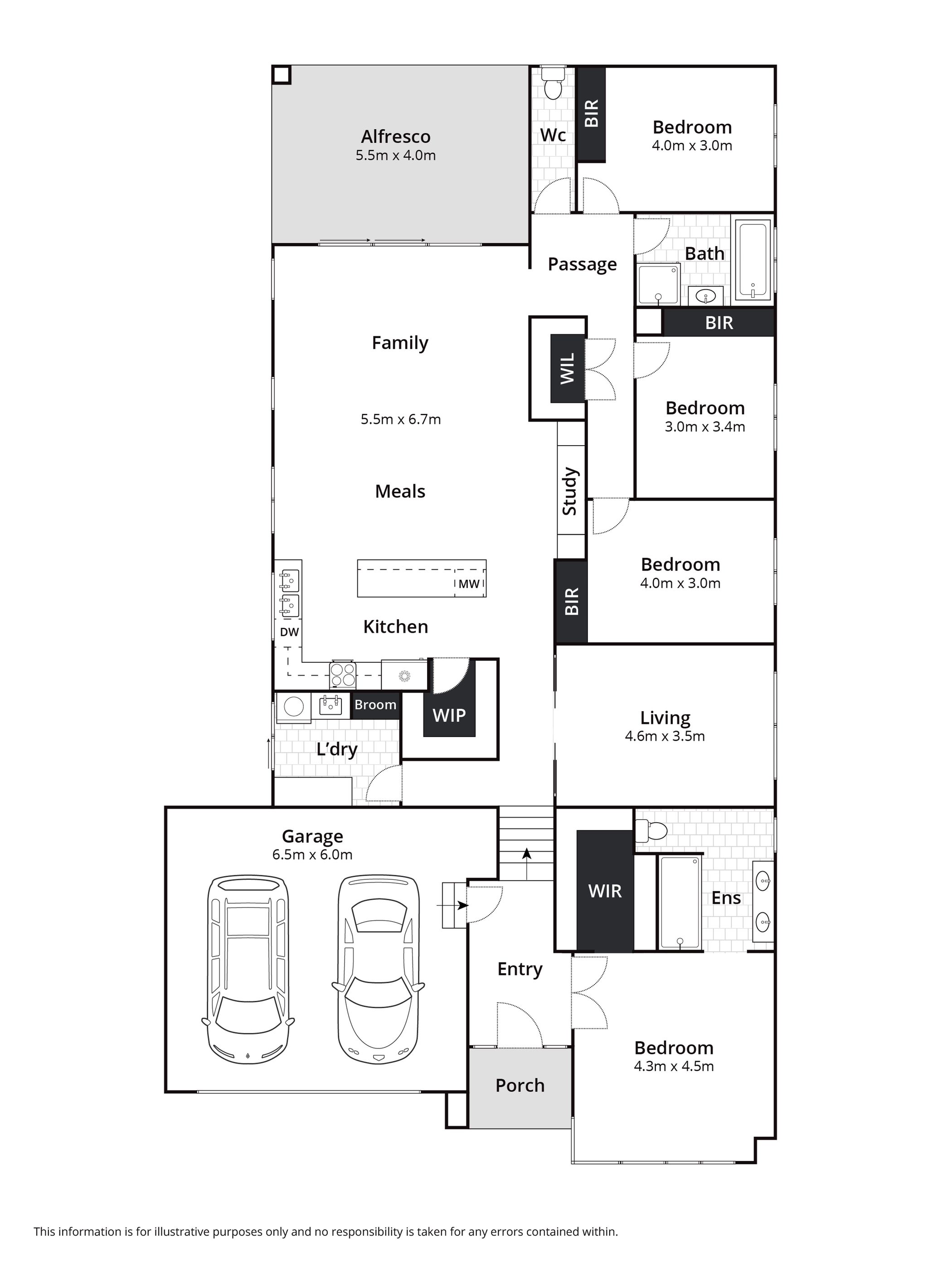
Set on 561sqm this 4-bedroom family home is the perfect combination of quality and comfort, with a thoughtfully designed floorplan ideal for any family make up. Upon entry you are greeted by the Havana timber flooring which flows from the front door, through to the main open plan living area. The striking contrast of the Cuban coloured flooring with the neutral internal colour scheme, sets the tone for the modern style the moment that you enter the home.
The generous master bedroom is set privately at the front of the property, it features a large walk-in robe and spacious ensuite. The next featured space within the home is the formal lounge, which is perfectly positioned to double as a parents retreat or a theatre room. The main living area is the heart of the home, this open design features a generous kitchen, large dining & living space, and direct access to the outdoor entertaining space. The upgrades to the kitchen include 40mm stone bench tops, Smeg appliances, and a large walk-in pantry. Immediately adjacent to the kitchen is a creatively positioned study nook which is perfectly placed to supervise children studying or to utilise as a functional workstation. The main living features sliding access to the undercover entertaining area creating the ideal indoor/outdoor integration.
The 3 remaining bedrooms run along the south side of the home, keeping them cool in summer and are set away from the master suite. Each bedroom offers a built-in robe, and they all have easy access to the main bathroom and toilet. The home boasts a number of features designed to enhance the liveability, including walk in storage, ducted heating, evaporative cooling, double glazed windows and a generous double garage featuring remote access and internal entry.
The home is conveniently located within minutes of the Barrabool Hills shopping centre, a short drive to multiple Primary and secondary Schools and it offers immediate access to the by-pass.
• 2 Generous living areas
• 4-Bedroom home on a 561sqm allotment
• Expansive master bedroom, with a generous ensuite
• Free flowing floorplan with excellent outdoor living
Current rent return at $640 per week. To discuss in further detail please contact Emily Reid on 0477 922 969.

















