Close
Just Renovated - Three Bedroom + Bungalow + workshop | Garden Maintenance Included
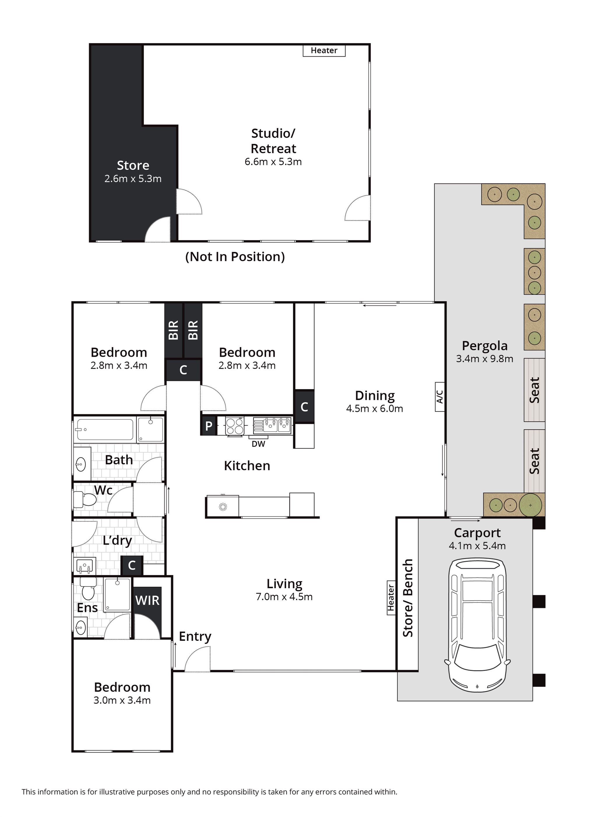
A stunningly renovated family home embracing its Mid-Century appeal along with a perfect blend of comfort, convenience, and community in the heart of Bell Post Hill. Located in a quiet, tree-lined street, this home offers loads of natural light, huge living rooms and easy access to everything Geelong has to offer.
The key features include: a brand new beautifully appointed galley style kitchen with stone benches and all electric Bosch appliances including dishwasher, leading to huge slate tiled sunlit, north facing dining room with brand new cabinetry, study nook, split heating/cooling and access to the alfresco area.
Spacious front living room with electric log fireplace and views out to the front leafy garden. Three generous bedrooms, the main with a walk-in robe and brand-new ensuite, large built-in robes in the further two rear bedrooms. Central stylish family bathroom with separate shower recess, bath & vanity. Separate toilet and family sized laundry with outdoor access.
Massive bungalow /studio with own access, perfect for home office/gym/Pilates studio (the use is endless) and adjoining separate work-shop with build in storage.
Lovely well-manicured front and rear yards with garden maintenance included, covered and paved out-door entertaining area flowing directly from the living zones. Undercover parking with more storage and off-street parking for a second car.
Excellent schools nearby, including Kardinia International College and Rollins Primary. Strong sense of community and cultural diversity. Great local amenities include Pettitt Park & playground, local shops and reserves for weekend downtime. Easy commuting with fast access to the Geelong Ring Road and public transport options. Sport & recreation at your doorstep: Myers Reserve supports local footy, netball, soccer making this the perfect family home.
ALL interested parties must register for inspections using the Get in touch link for www.realestate.com.au or - the Contact Agent/Enquire links via www.gartland.com.au or www.domain.com.au.
- Inspections are subject to cancellation or change with minimal notice.














