Close
Free-Flowing Floorplan Is The Perfect Entertainer
Private Inspection Times Available On Request
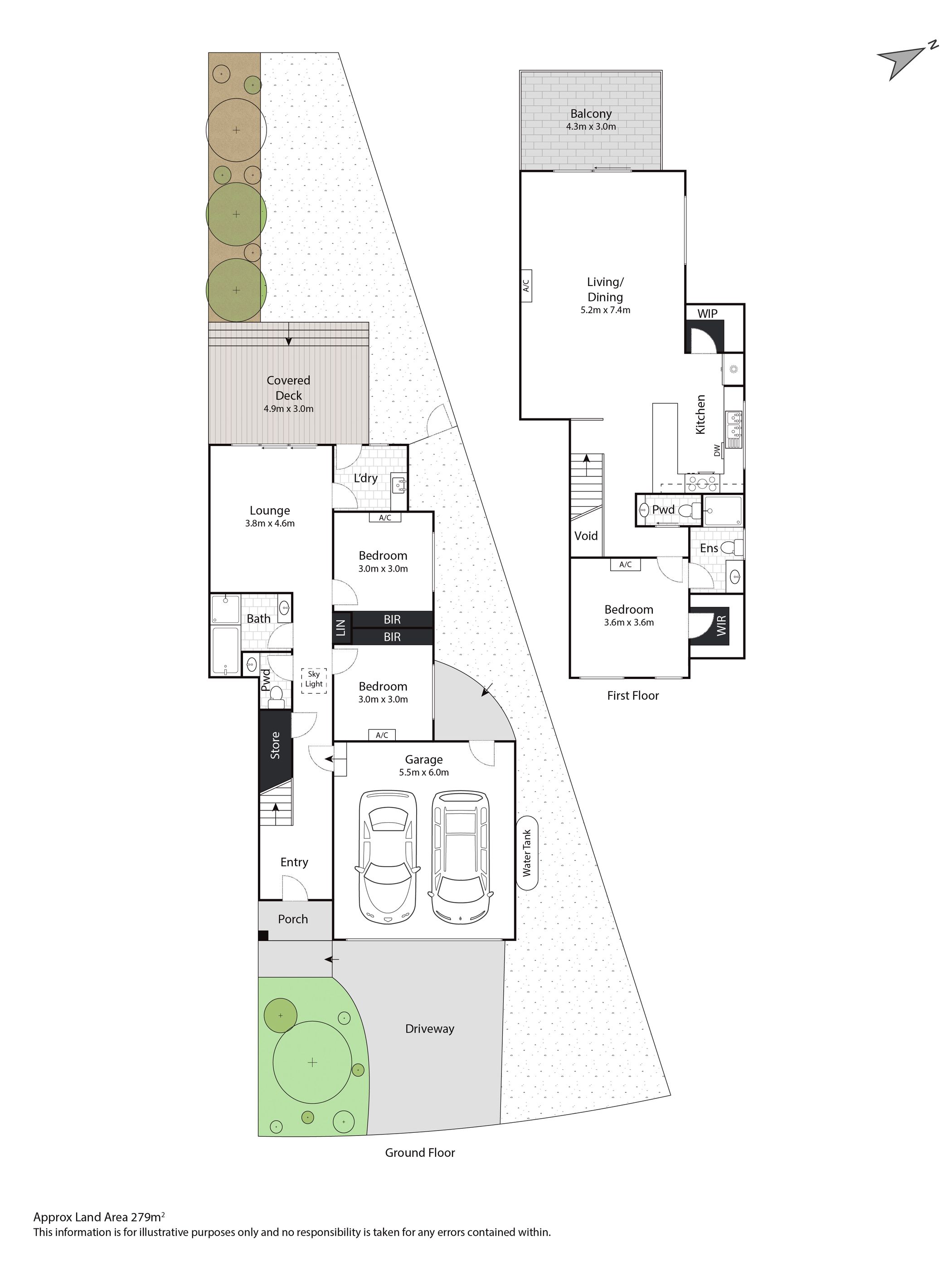
This relatively newly built home is the perfect blend of size, functionality, and location. The contemporary style perfectly complements the thoughtful floorplan and free-flowing design. The feeling of space grabs you the moment you walk in the front door, and the ground level capitalises on the natural light streaming in, whilst the undercover decked area creates the perfect space for outdoor entertaining.
The home features several carefully created zones, with the upstairs main living, kitchen and dining area being the centrepiece of the property. This expansive open space boasts a kitchen with generous bench space highlighted by the stone finish, extensive storage, and a walk-in pantry. The kitchen is the perfect blend of neutral tones, quality appliances, and superb functionality. The kitchen window captures the morning sun, and the orientation maximises the integration between the kitchen and dining space. The dining area boasts enough room for a large family table, without encroaching on the lounge. The main living offers you the freedom of multiple configurations and the stacker doors allow you to blend the indoor living, with the outdoor balcony.
The thoughtful design of the ground-level space incorporates a second living space, second bathroom, powder room, laundry, internal access to the garage, and under-stair storage. The main bedroom offers a spacious walk-in robe and ensuite. Bedrooms two & three each have built in robes and are located immediately adjacent to the main bathroom and separate toilet.
Each of the bedrooms and the main living space have their own split systems so you can create the perfectly controlled climate, the window furnishings add colour and class, and the colour palette throughout will allow you to add your own personality.
The location puts you on the doorstep of Buckley Falls, the Barwon River, and Queens Park. You will be moments from some of Geelong's finest schools including St Josephs College, Geelong College and Sacred Heart; and there is easy access to central Geelong, the ring road, Deakin University and the Epworth Hospital.
Potential rent return at $695 - $710 per week.























