Close
Executive Style, Exceptional Position
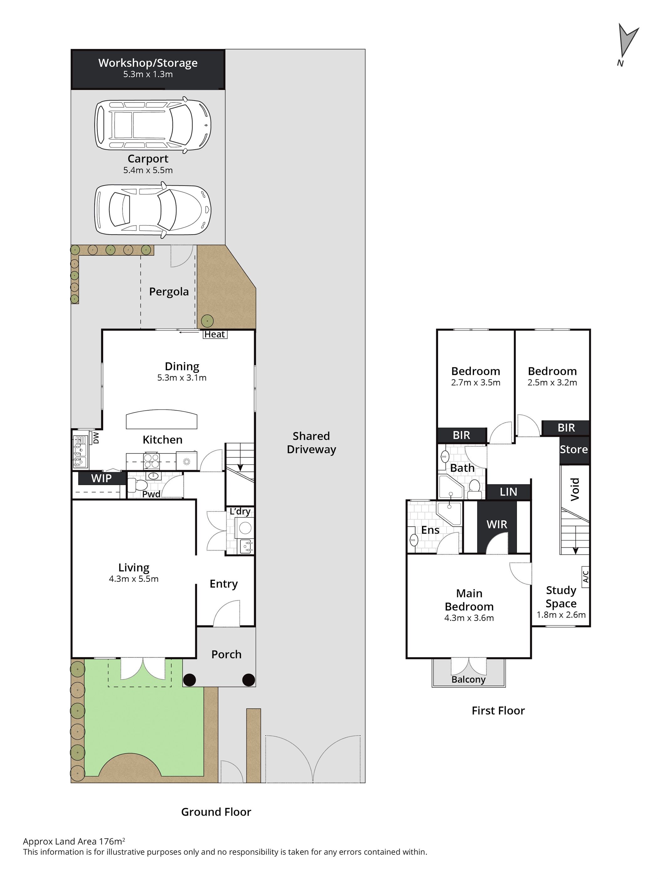
Located right on the doorstep of the river end of Pakington Street, this executive townhouse is the perfect combination of lifestyle and comfort. The home is set on a low maintenance allotment with undercover parking to the rear. The thoughtfully designed property features generous living space and large bedrooms. Upon entry, the first room is the main living; this expansive space is north facing and boasts a set of double doors which capture the idyllic natural light. The home then flows through to the kitchen and dining area, which is spacious enough for a large dining table, or even a second sitting zone. The kitchen includes generous storage, a breakfast bar, and it overlooks the dining area and out to the courtyard. The glass sliding doors allow for integration of the inside living and outdoor entertaining space. The upstairs section of the home capitalises on the north aspect, with the master bedroom and the study nook at the top of the stairs benefiting from the uninhibited orientation. The master bedroom includes a large walk-in robe, ensuite, and features double doors to the front balcony. Bedrooms 2 & 3 include built in robes and are well positioned away from the master with the main bathroom creating the perfect buffer in between.
The home has been carefully designed and includes excellent storage, heating, cooling, the convenience of a downstairs powder room, and a dual carport complete with a storage unit.
The superb location is highlighted by the close proximity to Pakington Street, the convenience of immediate access to public transport, and you are a 5-minute walk from the Kardinia Park sport and recreation precinct.
• 3 generous bedrooms, including ensuite to the master
• Generous living areas
• Exceptionally located on the door step of Pakington St
• Minutes from the Kardinia Park sport and recreation precinct
Potential rent return at $470 - $490 per week. To discuss in further detail please contact Emily Reid on 0477 922 969.




















