Close
Elevate Your Presence on Barwon Heads Main Street
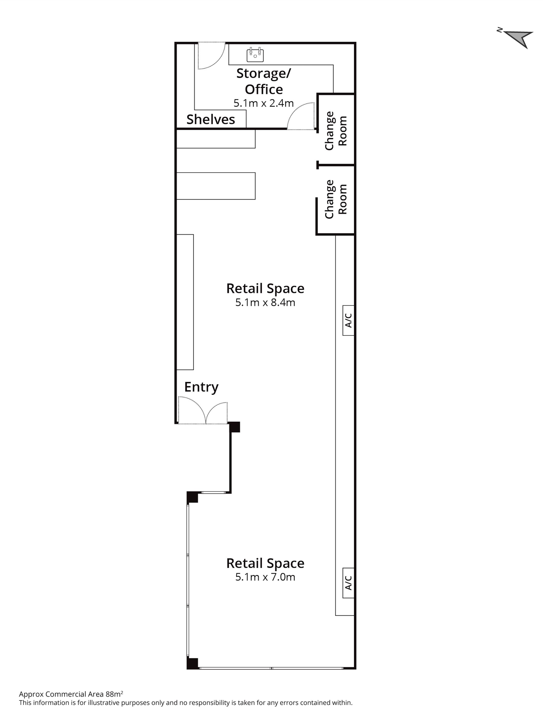
Gartland is pleased to present for lease 1/68 Hitchcock Avenue, Barwon Heads, a rare opportunity to secure a premium retail space on one of Victoria's most desirable coastal main streets.
This near-new tenancy offers 88sqm of versatile floor area, suitable for retail, office or a combination of uses, with the added benefit of shared staff amenities. Positioned among established businesses and enjoying high foot traffic, it's an ideal space for operators looking to establish or relocate their business in Barwon Heads.
Key Features:
For further information or to arrange an inspection, please contact us today.
*approx.


We take care in everything we do.
We live and breathe property - whether it be residential, commercial, investments or advice; it’s what we do, it’s our speciality.

















