Close
Outstanding Opportunity Beckons
Gartland are pleased to present a rare opportunity to secure a historic commercial space for lease at 130 Moorabool Street, Geelong. Opportunities of this calibre seldom arise, with the owner committed to seeing this once-immaculate building thoughtfully restored to its former prominence.
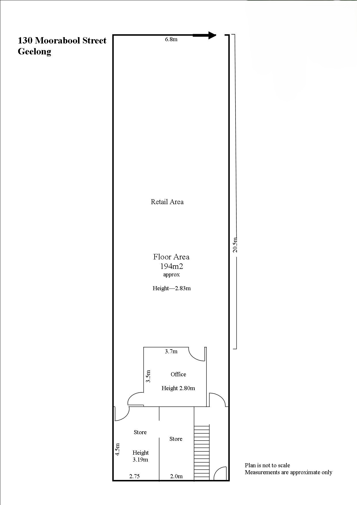
Comprising approximately 200sqm, the tenancy is well suited to hospitality, retail or office use. The concept renders within the photo gallery highlight the exceptional potential currently waiting to be unlocked, demonstrating how this character-filled space could be transformed into a standout business address.
Further strengthening the offering, Gelato Messina is set to open next door, driving strong foot traffic and adding further energy to the streetscape - an ideal synergy for hospitality and complementary retail operators.
Positioned within immediate proximity to the vibrant Little Malop Street dining and entertainment precinct, and surrounded by major corporate and government occupiers including Transport Accident Commission (TAC), WorkSafe Victoria and GMHBA headquarters, the property benefits from consistent weekday activation and a strong professional catchment.
While the scope of works may appear substantial, the landlord is prepared to contribute towards improvements and work collaboratively with the incoming tenant to deliver a high-quality, revitalised premises that respects the building's heritage while supporting modern commercial requirements.
Key Property Features
For more information or to schedule a viewing, contact us today.
This listing contains AI renders of the available space and these images are not representative of how the property presents.
*approximately
















