Close
Premium Serviced Offices and Workstations, Plus Full Lift Access
Gartland are pleased to offer for lease serviced office suites at 20-22 Malop Street, Geelong.
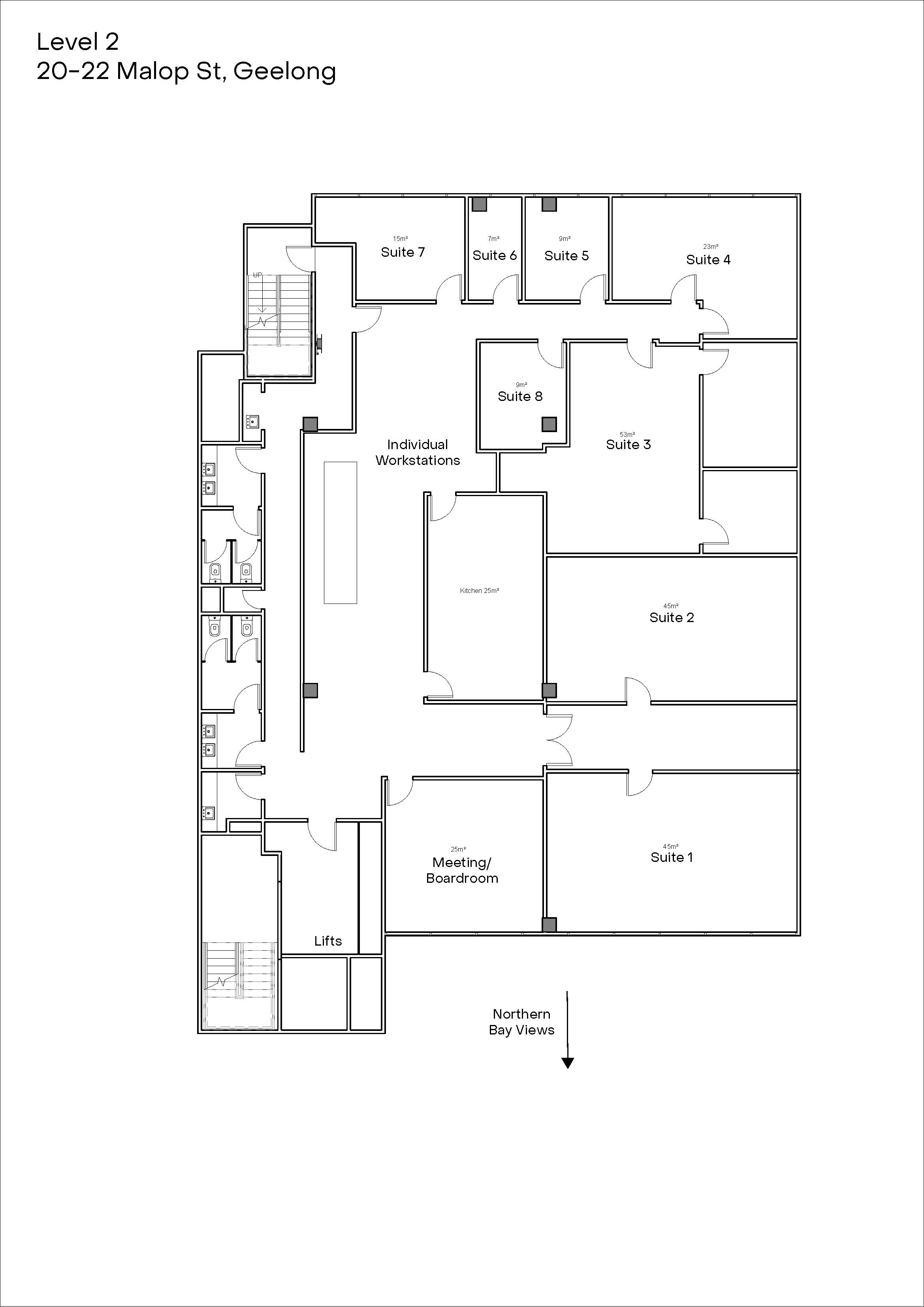
On offer are 8 private suites and 6 individual workstations ranging from 7 - 53 sqm*. All available spaces are serviced by shared facilities including toilets, kitchen and boardrooms and benefit from disabled access.
With their proximity to the Geelong Magistrates' Court, NDIS, TAC, Geelong Council and the GMHBA Head Quarters, the suites on offer lend themselves to any affiliated businesses to capitalise on location and networking opportunities.
Being located on the second floor, the space is filled with natural light with many of the office suites benefiting from either bay or city views.
Level 2
Private Suite 1 - $35,000 PA + GST (45sqm*)
Private Suite 2 - $30,000 PA + GST (45sqm*)
Private Suite 3 - $30,000 PA + GST (53sqm*)
Private Suite 4 - $25,000 PA + GST (23sqm*)
Private Suite 5 - $12,000 PA + GST (9sqm*)
Private Suite 6 - $8,000 PA + GST (7sqm*)
Private Suite 7 - $15,000 PA + GST (15sqm*)
Private Suite 8 - $11,000 PA + GST (9sqm*)
Individual Workstations - $450/month + GST ($5,400 PA + GST)
For more information or to book an inspection, contact us today.
*Approx.

















