Close
Strategically Located Industrial Property (Vacant Possession)
OPEN FOR INSPECTION - WEDNESDAY 17th AUGUST, 12:00pm
Gartland are delighted to offer this well maintained property for sale by Auction on Wednesday 17th August at 12.30pm.
Don't let this rare opportunity to purchase and occupy your own freehold warehouse (no owners corporation) in this outstanding area pass you by.
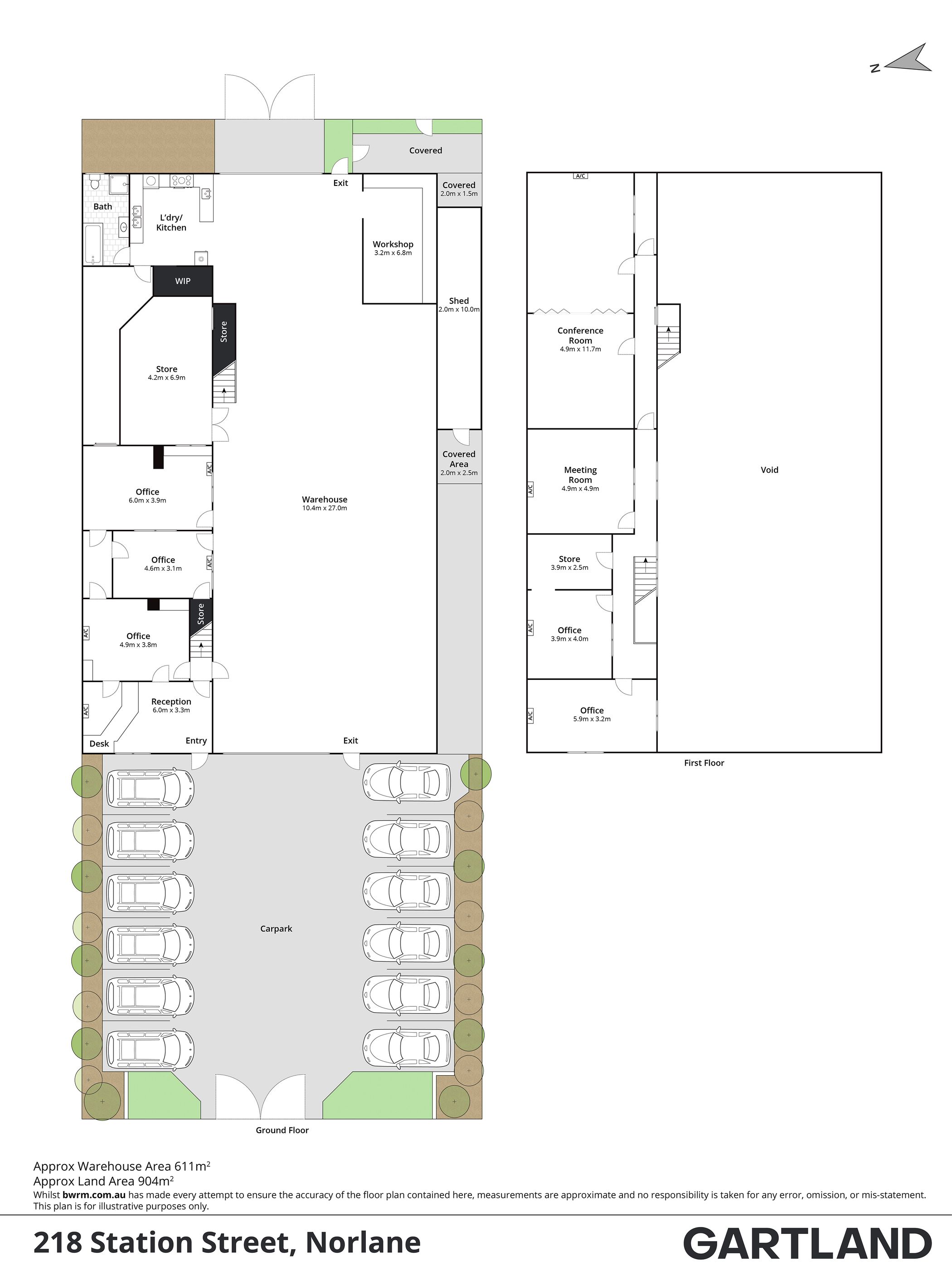
For sale with vacant possession, the building area is 466sqm* and is situated on 904sqm* of industrial 1 zoned land.
The central & thriving location is excellent only minutes from the entrances of Princess Highway & Geelong CBD is only 10 minutes away and the new Port of Geelong & home to the Sprit of Tasmania Terminal only few minutes away
218 Station Street, Norlane is suited to a variety of businesses and is currently being used by a Removalist Company.
The Property offers outstanding offices, Kitchen, Laundry & Toilet facilities including shower adding the total area to 600sqm approx,
Key features include;
• 904sqm of industrial 1 zoned land 20m X 46m
• Build area: 460sqm - 16.4m X 27m + added 200m2 of office facilities approx
• Good internal height clearance.
• Dual/drive through roller door access
• Three phase power supply
• Own title, fully fenced with gates
• 10 car parking spaces available























