Close
Superbly Located Office Space On Moorabool Street
Gartland are pleased to offer for lease 228 Moorabool Street, Geelong.
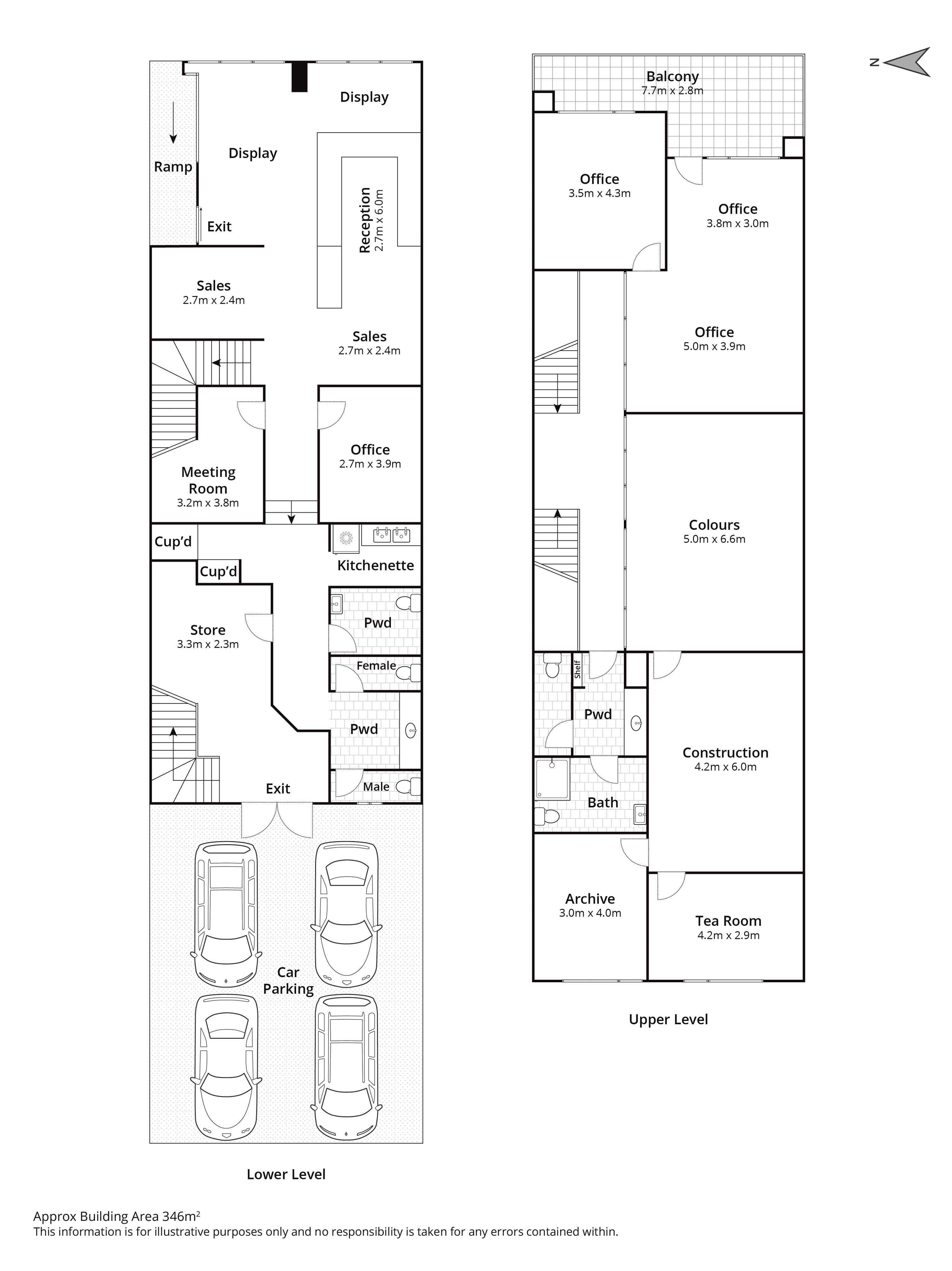
• Build area: 346 sqm
• Land area: 250 sqm
• Activity Centre Zone 1
Modern, well-presented office and allied health premises ideally positioned in the heart of Geelong's Health Precinct. Located moments from St John of God Hospital, this property offers excellent accessibility and convenience for practitioners, staff, and clients.
The building features a contemporary design with a modern rear aspect and outstanding off-street car parking, including disabled access. Office space is spread across both the ground and first floors, providing flexibility for a range of medical, consulting, or professional uses.
Key features include:
• Prime location close to St John of God Hospital and Geelong Health Precinct
• Modern, professional presentation
• Ground and first floor accommodation
• Excellent off-street car parking
• Disabled access
• Convenient and accessible location for clients and staff



















