Close
Versatile Warehouse with Premium Office Accommodation
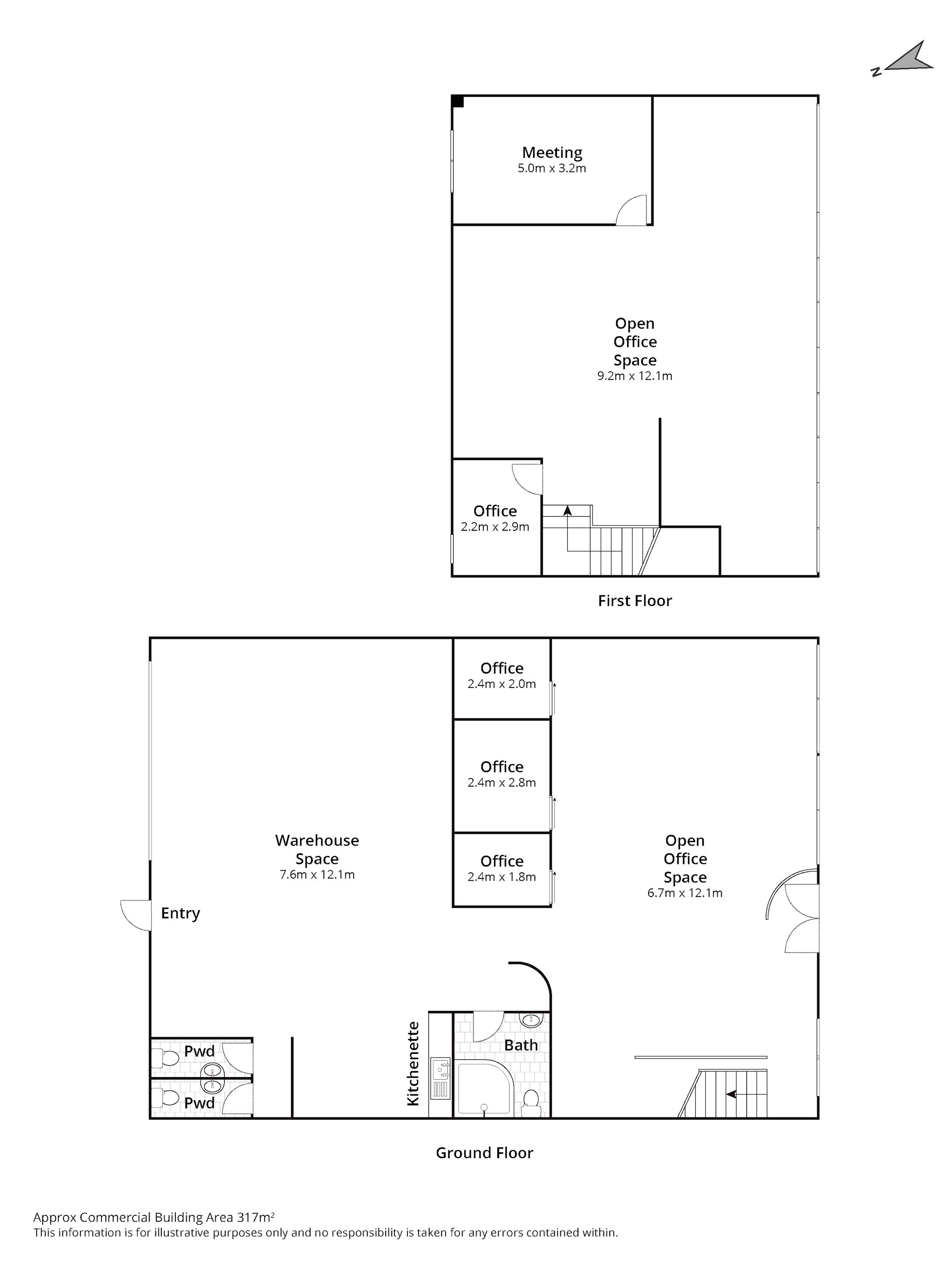
Gartland are pleased to offer for lease Warehouse 23 within 7-21 Newcastle Street, Newtown. Position your operation in one of Geelong's most tightly held and well-connected commercial precincts. This substantial and adaptable facility presents an outstanding opportunity for trade-based businesses, storage and distribution, light manufacturing, or logistics, with a strong emphasis on quality office accommodation.
Comprising a total building area of 327sqm*, including an expansive 233sqm* of well-appointed office space, the property is ideally suited to businesses seeking a balance between functional warehousing and a professional administrative environment. With excellent access and a practical layout, this site is designed to support productivity and future growth.
Property Features:
Positioned within a tightly held Newtown commercial precinct, the property is moments from the Barwon River, Pakington Street, and offers seamless access to the Geelong Ring Road and CBD.
For further information or to arrange an inspection, contact the Gartland agents today.















