Close
Outstanding Investment in Premiere Location
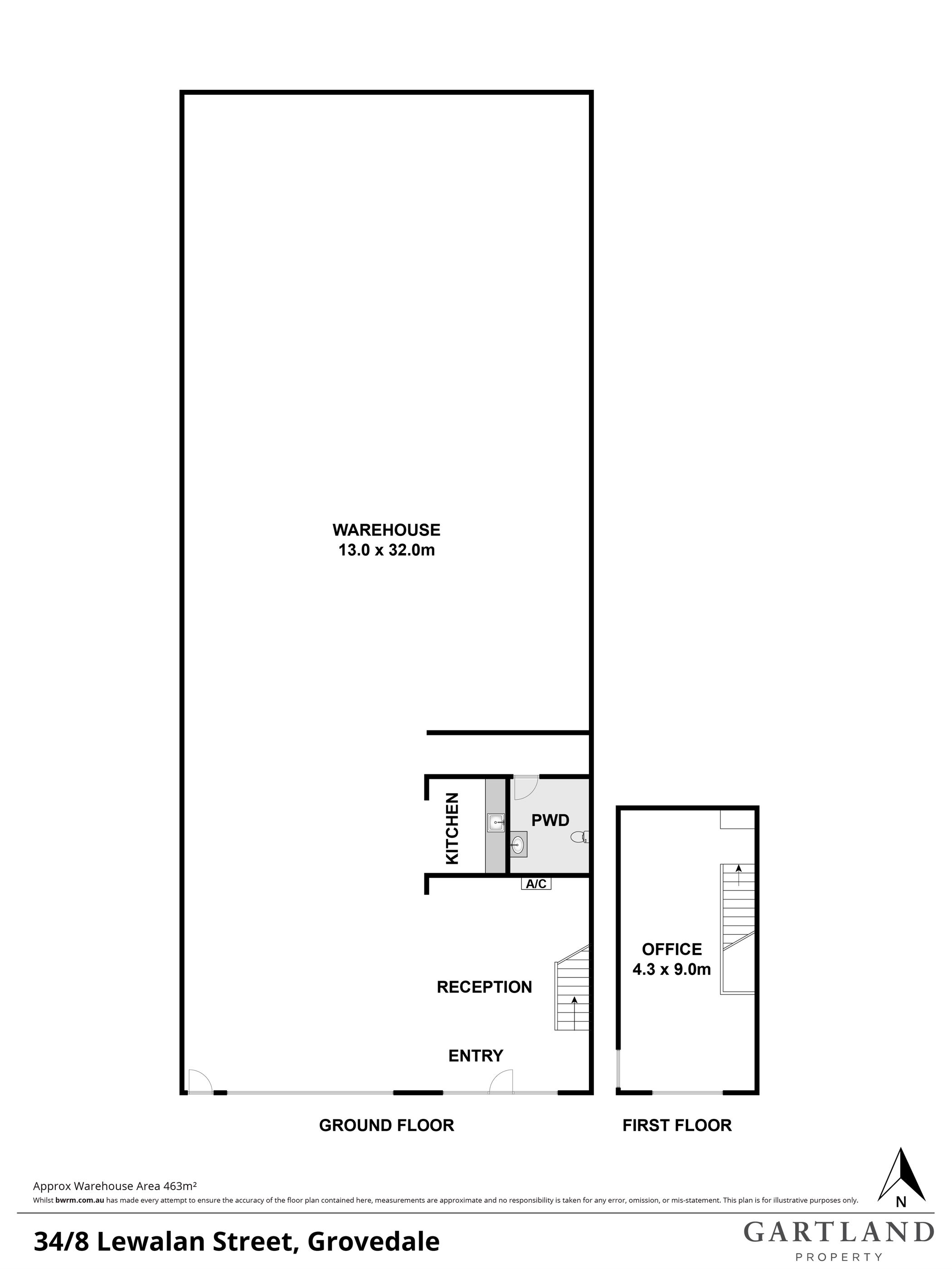
This outstanding investment opportunity in Geelong's premier industrial precinct is situated in a highly sought-after location, minutes from the CBD, major arterials and at the entry way to Geelong's growth corridor, Armstrong Creek.
• Access to Armstrong creek & Surf Coast
• Excellent local tenant
• $55,000 pa + +
• 3 year lease from 04/01/2021
• 2 further terms of 3 years


We take care in everything we do.
We live and breathe property - whether it be residential, commercial, investments or advice; it’s what we do, it’s our speciality.





