Close
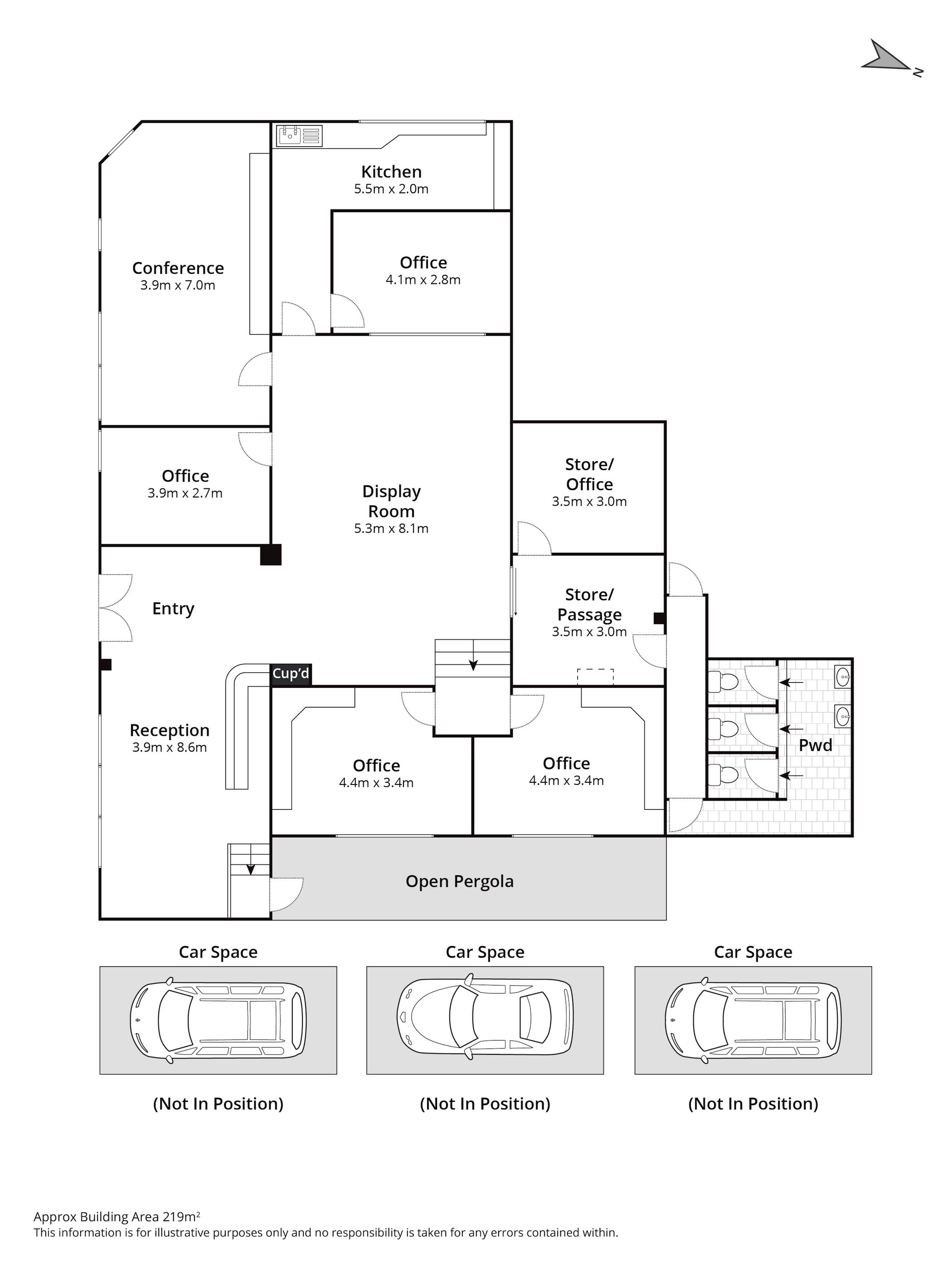
High Traffic Showroom and Office
Gartland are pleased to offer for lease 58 Church Street, North Geelong.
Currently occupied by a national building company, the property on offer provides the perfect balance between showroom, office space and convenience.
Located within minutes of the Geelong CBD and benefitting from a frontage to Church Street in excess of 27 meters, any business lucky enough to secure this tenancy will not be missed.
Property Features:
*Approximately
For more information or to book an inspection, contact us today.


We take care in everything we do.
We live and breathe property - whether it be residential, commercial, investments or advice; it’s what we do, it’s our speciality.

















