Close
Secure Industrial Property with Exceptional Access
Gartland are pleased to offer by way of private sale, 8/156 Victoria Street, North Geelong.
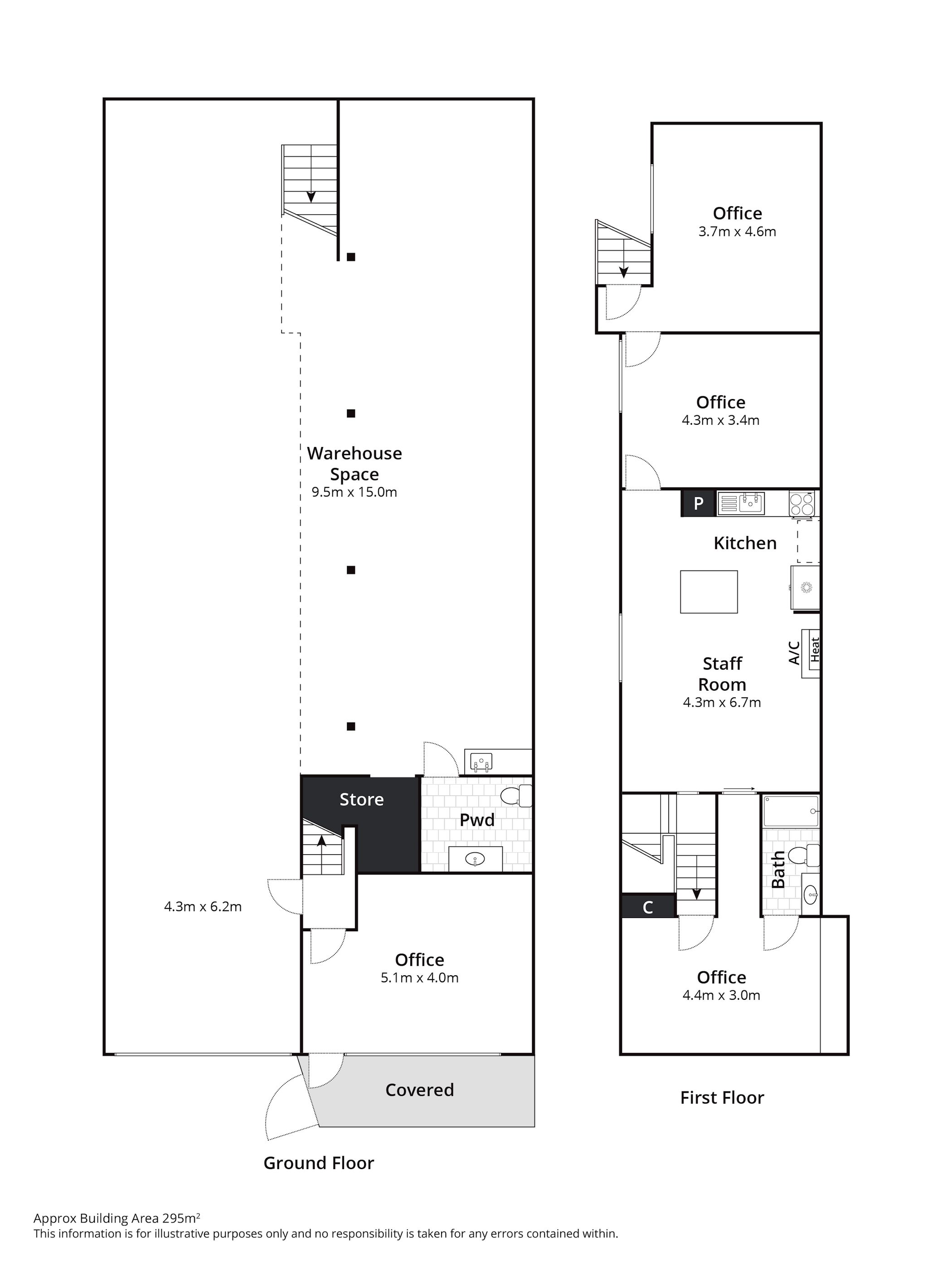
This 295sqm* warehouse is ideally located with easy access to key arterial routes, including the Princes Highway and Thompson Road, offering seamless connections to Geelong, Melbourne, and the Surf Coast. It presents an excellent opportunity for a wide range of buyers, including investors, owner-occupiers, and businesses of all sizes.
The property is fitted with a large, well appointed mezzanine with multiple offices and staff facilities. Set within a bustling industrial precinct, the property is surrounded by established companies such as Nexus Civil, Pacific Trailers, and Pivot Stove, creating a vibrant business environment full of opportunities for clients, partners, and growth.
Positioned at the rear of the development, the property offers a gated façade, providing both privacy and a high level of security.
Property Features:.
• Vacant Possession
• Total Floor Area: 295sqm*
• Mezzanine Area: 91sqm*
• Ground Floor Area: 204sqm*
• Zoning: Industrial Zone 1
• 3-Phase Outlets Installed
• High-bay Roller Door: H 4.4m x W 3.6m
• Mezzanine Clearance: 2.5m
For more information or to schedule a viewing, contact us today.















