Close
High Exposure Opportunity
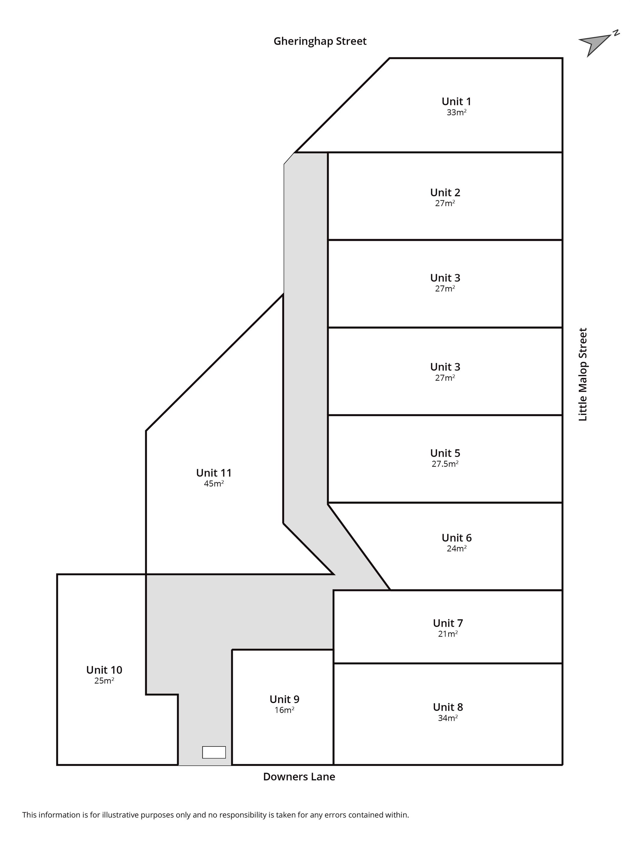
Gartland are pleased to offer suites 1, 4, 10 and 11 of 4/23-31 Gheringhap Street, Geelong.
Office suites 1 and 4 are located on the ground floor with access and signage to Little Malop Street.
Office suites 10 and 11 are accessed from Gheringhap Street and benefit from the abundance of natural light seen throughout the building.
With tenancies ranging from 24sqm - 45sqm, there are options for all types of businesses, established or growing.
All office suites are serviced with a common facilities.
Features and Amenities
Pricing
Please do not hesitate to reach out for more information or to arrange an inspection.
*approx.


We take care in everything we do.
We live and breathe property - whether it be residential, commercial, investments or advice; it’s what we do, it’s our speciality.





















