Close
Superb Stand Alone Moolap Industrial Warehouse
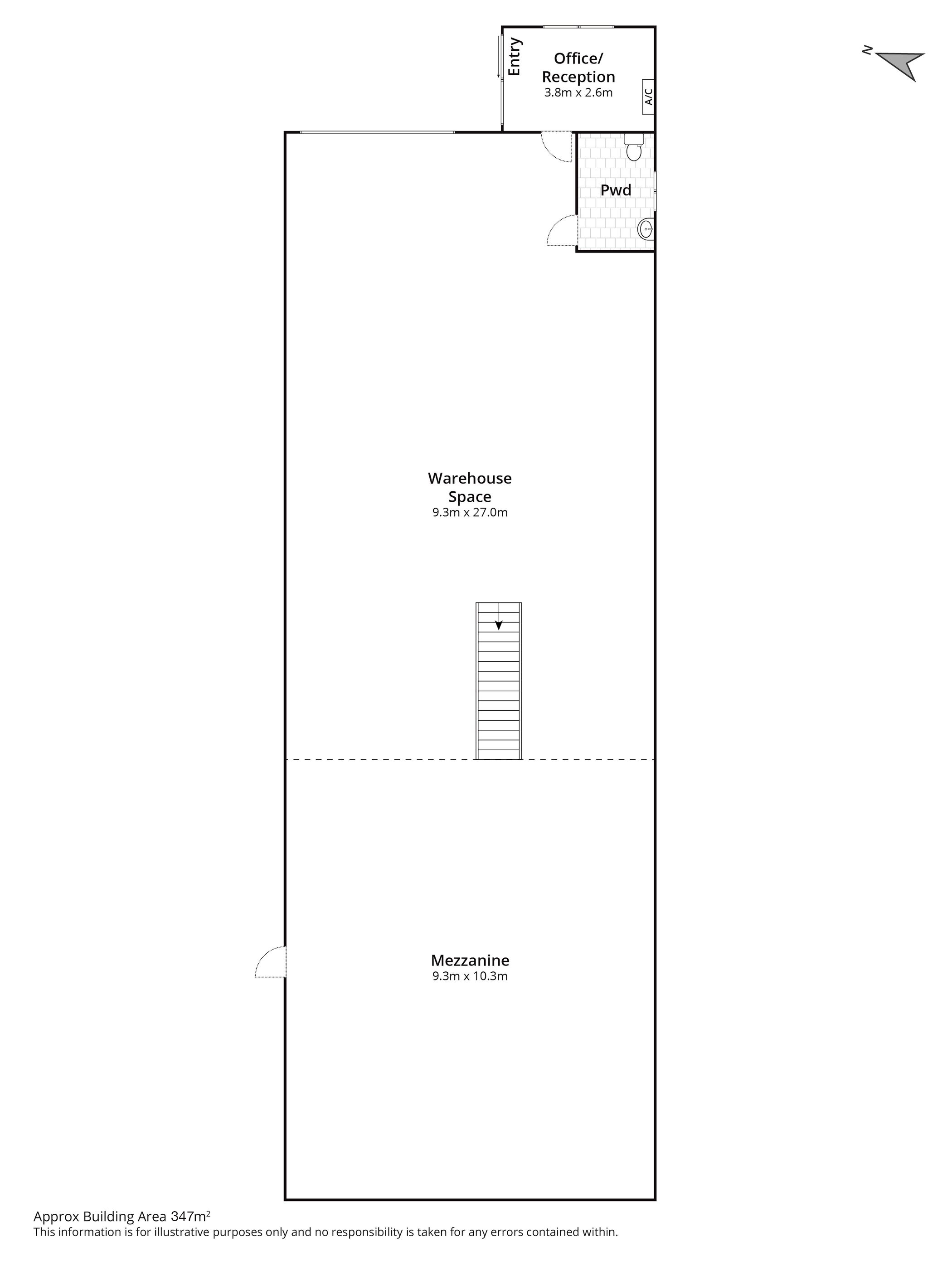
Gartland is pleased to present a prime stand alone warehouse for lease in the highly sought-after Moolap industrial precinct. This excellent warehouse enjoys proximity to major arterials: The property provides ample on-site parking and high clearance access, making it ideal for various business needs.
Key property features:
• Generous land area of 630m2
• Build area: 347m2 approx
• Zone: Industrial 1 Zone
• Three-phase power supply
• High internal clearance
• Front office with glass door entrance & Aircon/Heating
• Mezzanine area which is excellent for storage
• Superb street frontage with generous car parking
• Property has a secure fence
• There is extra hardstand on both sides of the shed and also at rear of property.
For more information or to schedule an inspection, contact us today.











