Close
Prime Investment/Future Development Opportunity
Gartland are pleased to offer 192 High Street Belmont For Sale via Auction.
Located at the top end of High Street Belmont, the property offers excellent visibility and exposure to foot and vehicle traffic. The position ensures maximum visibility and accessibility. Surrounded by a vibrant neighbourhood, this property benefits from a thriving urban environment, making it an attractive investment opportunity & future development opportunity.
Lease Details;
• Tenant: Capra Coffee
• Three years from 31st October with two further options of three years each
• Annual CPI increments & Market review at option
• Rent: $130,000 Per Annum + GST + Outgoings
Auction held onsite on Thursday the 29th February at 1pm.
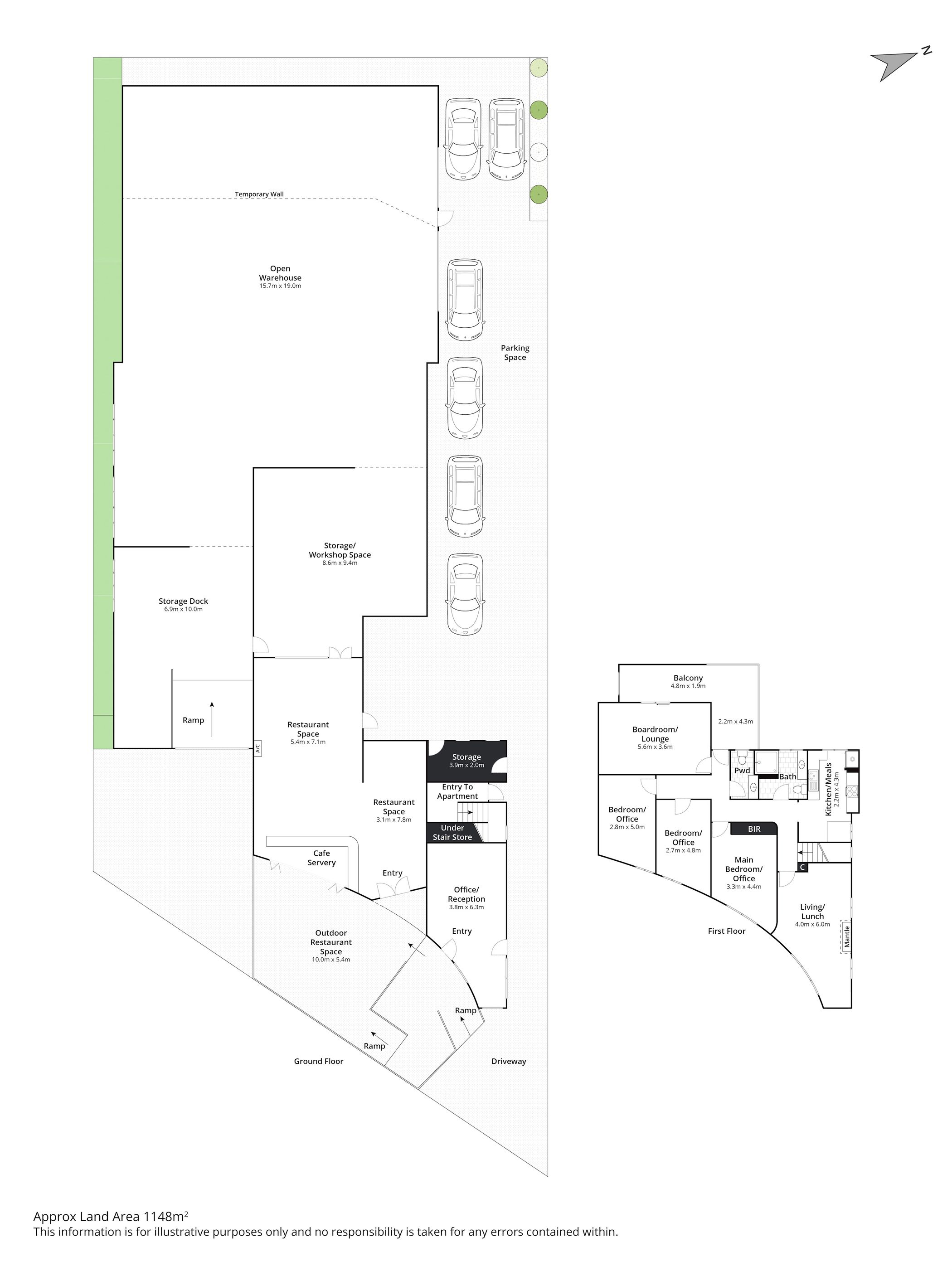
Property Details:
• Total Building Area 731sqm Approx, Ground Floor 550sqm Approx
• Land Area 1,148sqm Approx.
• Prime High Street retail location
• Adjacent to Roslyn Street
• Next door to Magic Hand Car Wash
• Future development opportunities eg: Retail, Medical, Residential or Student accommodation STCA
• Versatile 4 bedroom 1st Floor residence which can also be used as office space
• Commercial 1 Zone
Contact Adam Farrell on 0439 309 928 for further information or to arrange an inspection.























