Close
Occupy Invest or Development Opportunity
Gartland are pleased to offer by Private Sale this versatile property located at 194 Latrobe Terrace, Geelong West.
The property is located on Geelong's busiest roads with an enormous amount of passing traffic & is centrally located with access to Pakington Street, Geelong CBD, Geelong Train Station and all major roads leading in & out of Geelong.
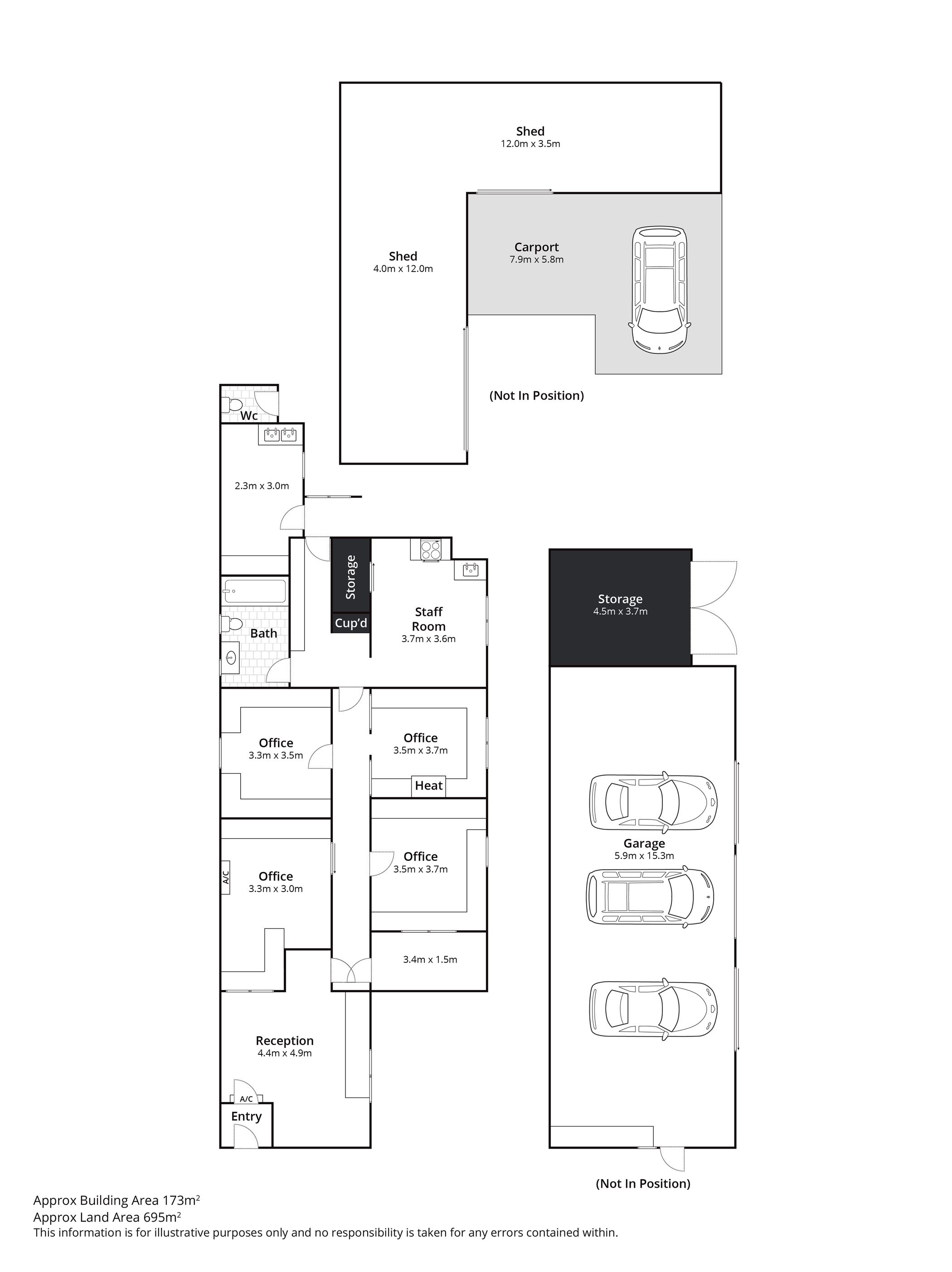
Commercial land has become increasingly scarce in the Geelong & surrounding areas, making this 695sqm* commercial 2 zone block, a rare opportunity and the buildings offer more than meets the eye.
For owner occupiers, the site is well set-up to continue the existing use as a workshop, yard & office
The land is regular in shape with approx dimensions of 12 x 55m* and has full perimeter fencing.
We anticipate the property will suit owner occupiers and investors with excellent leasing potential.



















