Close
Premium Warehouse & Office Facility in the Heart of Newtown
Gartland are pleased to offer for lease 22/7-21 Newcastle Street, Newtown. Position your operation in one of Geelong's most tightly held and connected commercial precincts. This adaptable warehouse facility offers an outstanding opportunity for trade-based businesses, storage and distribution, light manufacturing, or logistics. With excellent access and functional layout, this site supports productivity and growth.
Property Features:
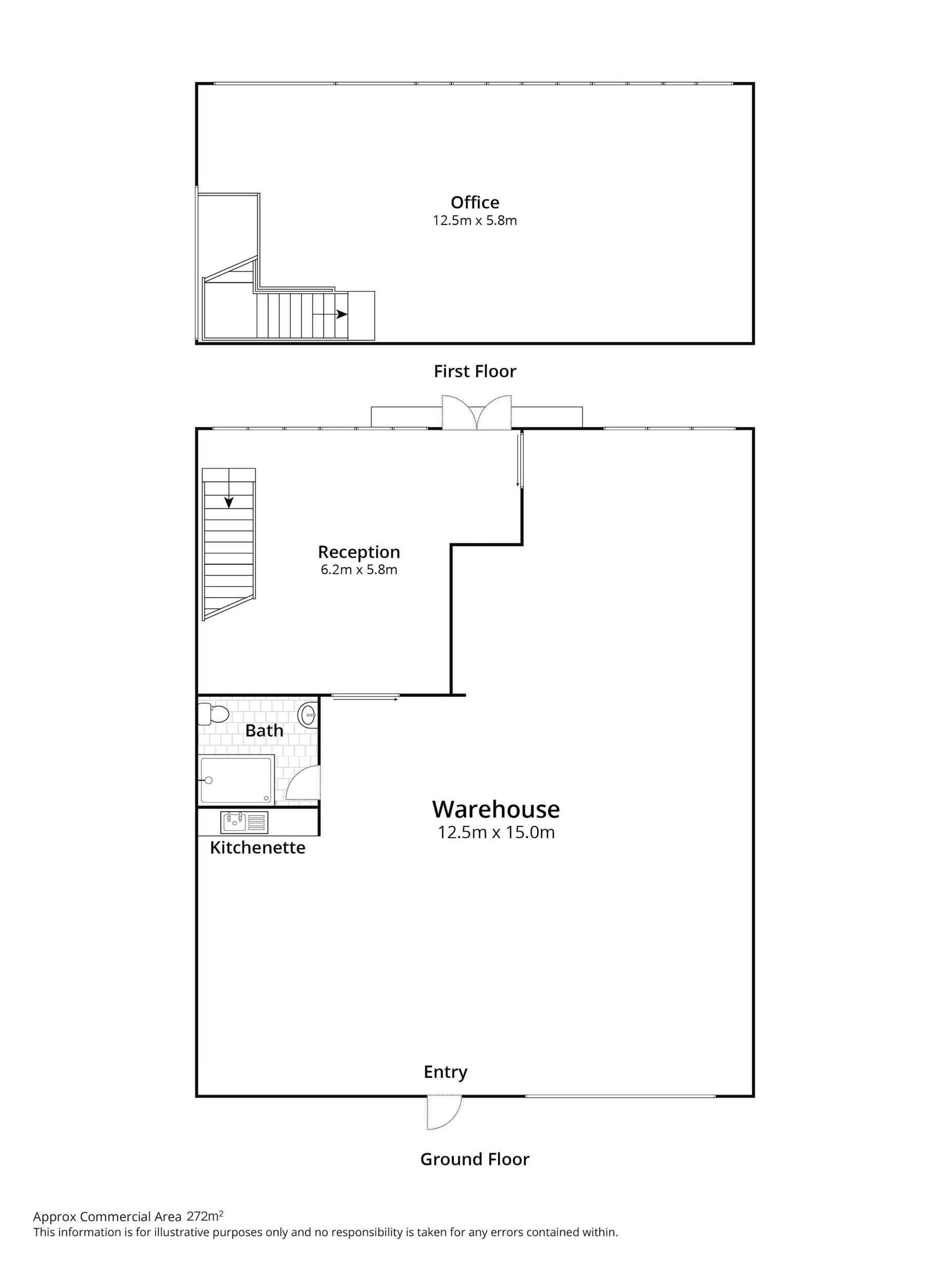
- Contemporary two-level configuration with warehouse, reception, and office
- Light-filled ground floor reception/waiting area with polished concrete floors
- Expansive first-floor office space
- Ground floor warehouse/workshop area
- Modern kitchenette and bathroom
- Heating & cooling systems to office and reception areas
- Zone: Commercial 2
Positioned in a tightly held Newtown commercial precinct, moments from the Barwon River, Pakington Street and easy access to the Geelong Ring Road and CBD, this property is ready to elevate your operations.
For further information or to arrange an inspection, contact the Gartland agents today.

















