Close
Premium Opportunity In Highly Sought After Location
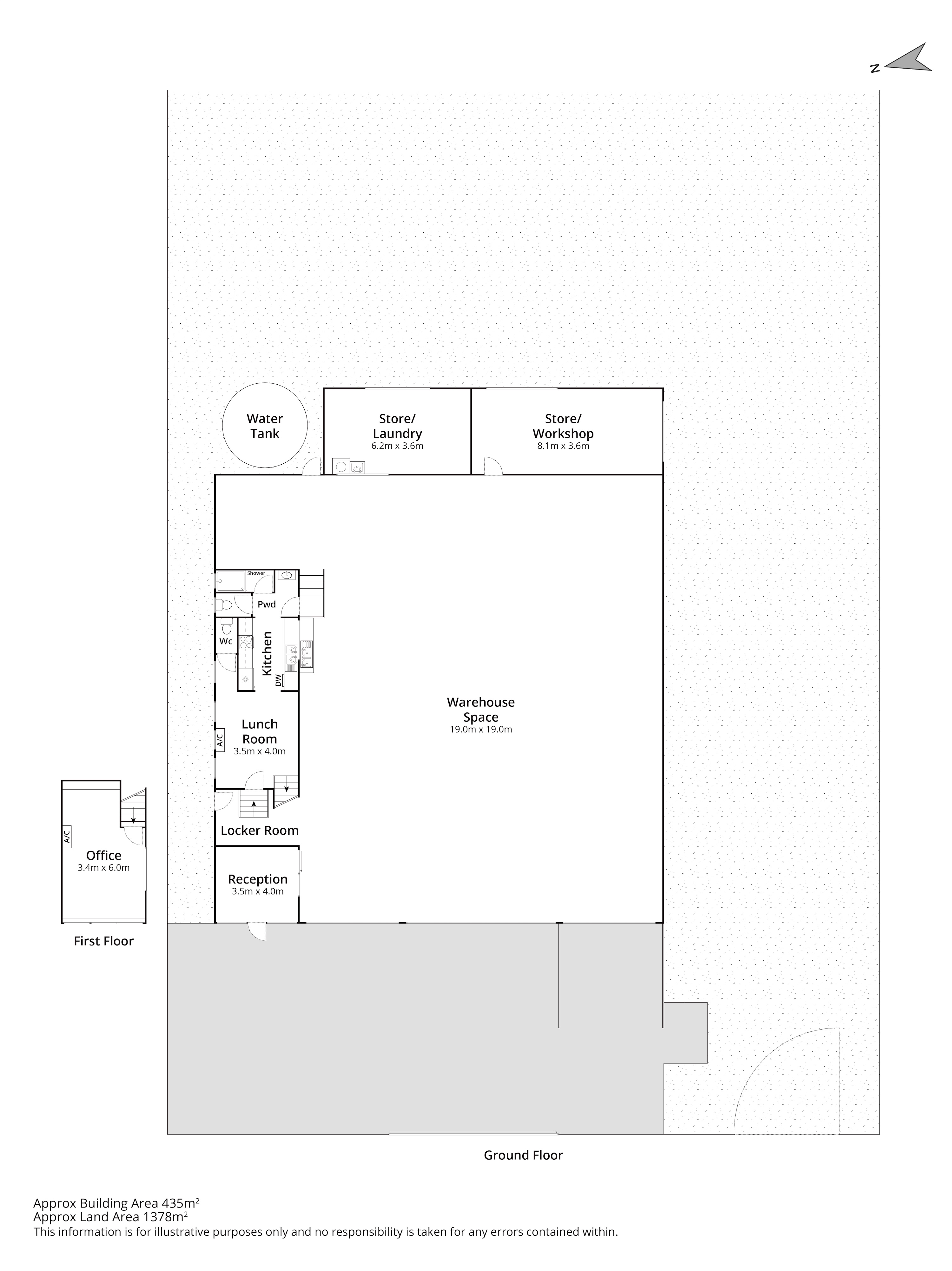
Gartland is pleased to present a unique opportunity to the market with the private sale of 24-26 Seaside Parade, North Shore. This expansive, recently refurbished property is currently operating as a truck detailing business.
Ideally located near the Geelong Port and Spirit of Tasmania terminal, the property is just 200 meters from North Shore Train Station and offers convenient access to the Princes Highway and Geelong CBD.
Key Property Highlights:
• Land area: 30 X 45 = 1378m2
• Building area of 435m2 with internal offices and excellent amenities
• L&D lighting throughout
• Galvanised steel front gates, 3 Electric roller shutter doors, external sensor lighting, high bay wash bay area, laundry area, separate tool/work area, hoist, one tonne
crane, air compressor.
• Large hardstand area to side and rear
• Industrial Zone 2
• Offered with vacant possession
Power Upgrades Include:
• 9 x 3 Phase RCBO
• 5 x Single Phase RCBO
• 20 x High Bay LED Lights
• Fully Upgraded Sub Board



















