Close
High-Profile Position. Flexible Commercial Opportunity.
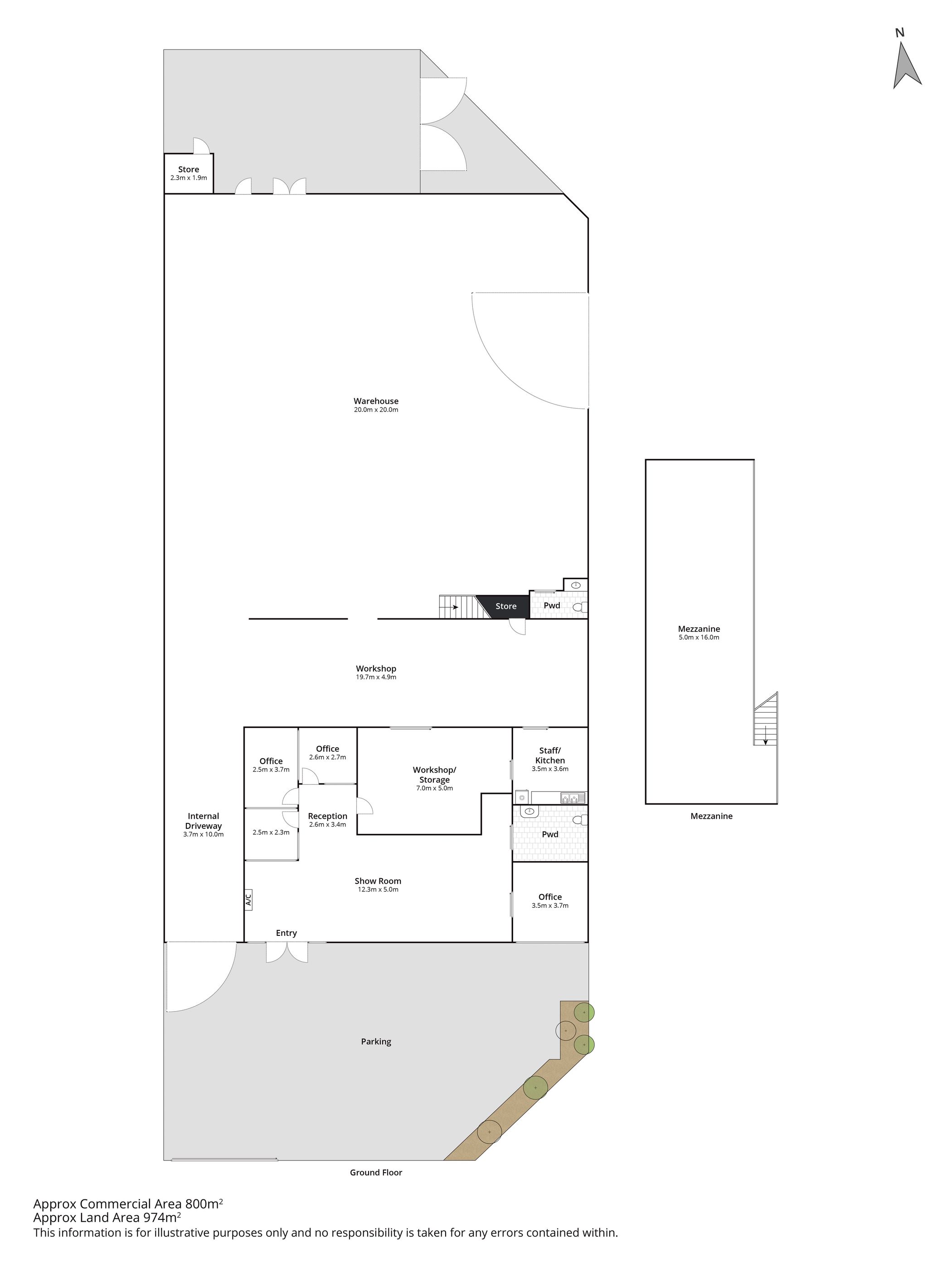
Strategically positioned with direct access to the Surf Coast Highway, this exceptional industrial property delivers the perfect balance of showroom presentation, office functionality, and warehouse capability.
Set on a 975sqm allotment, the site comprises approximately 700sqm of quality-built improvements. The property has been thoughtfully designed and engineered to accommodate a range of commercial and industrial uses, with flexibility at its core.
The front of the building features a generous showroom complete with office, staff amenities, and bathroom facilities. Seamless connectivity leads through to a versatile workshop area, accessible from both the showroom and the main warehouse. Above this section sits an 80sqm mezzanine, complete with loading bay access, ideal for additional storage or workspace.
The warehouse spans over 400sqm, with excellent vehicle access via the front and down the western side. At the rear, a fully concreted yard with drainage provides further functionality, suited to storage, vehicle accommodation, or use as a wash bay.
Key Features:
- Versatile floorplan ideal for showroom, warehouse, or office use
- Modern amenities and quality fittings throughout
- Excellent on-site parking and secure yard space
- Easy access to Surf Coast Highway, South Barwon industrial corridor, and Geelong CBD
- Surrounded by thriving local businesses and strong commercial growth
- Industrial 1 Zone
- Current rental income of $150,000 per annum
- 7 year lease term with two further options of 5 years each
Constructed from a distinctive blend of concrete and thermally regulated panelling (including internal walls) the building offers superior temperature control, sound insulation, and energy efficiency.
Located in the heart of Geelong's most dynamic growth corridor, this property combines size, flexibility, and premium build quality. It represents an outstanding opportunity for businesses seeking a professional industrial address with exceptional access and design credentials.



















