Close
Where Premium Business Meets Lifestyle
Gartland are delighted to be offering this Office/Showroom positioned within a high quality Business Park located just of West Fyans Street, Newtown and set amongst an array of quality Businesses. Positioned within a high capital growth precinct and only a short stroll to the Barwon Rivers edge this would make an ideal Investment either the owner occupier or someone seeking a quality Tenant. The perfect balance between life & work with everything at your door step from Eateries, Golf Courses & Exercise Trails.
Commercial 2 Zoning
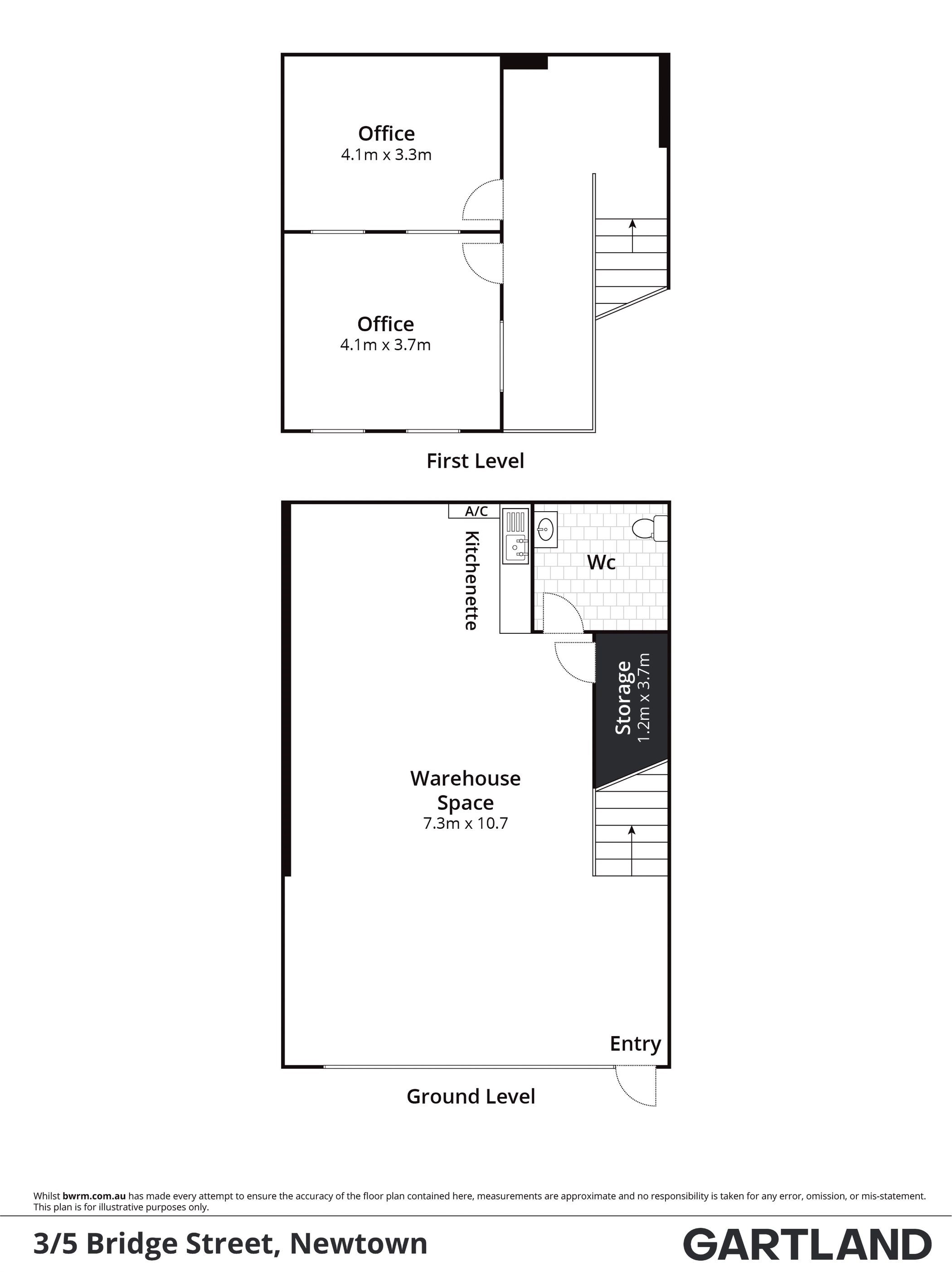
Build area: 130sqm approx with polished concrete floor kitchenette & toilet facilities
Mezz level: 50sqm approx
• Glass frontage
• Street Frontage
• Ample Car Parking
• Mezzanine Level
• Kitchenette & toilet facilities
• Newly opened Café across the road
• Close to Barwon river
• Balyang Golf Course across the road + Balyang Sanctuary













