Close
Secure Your Position in Moolap's Industrial Heart
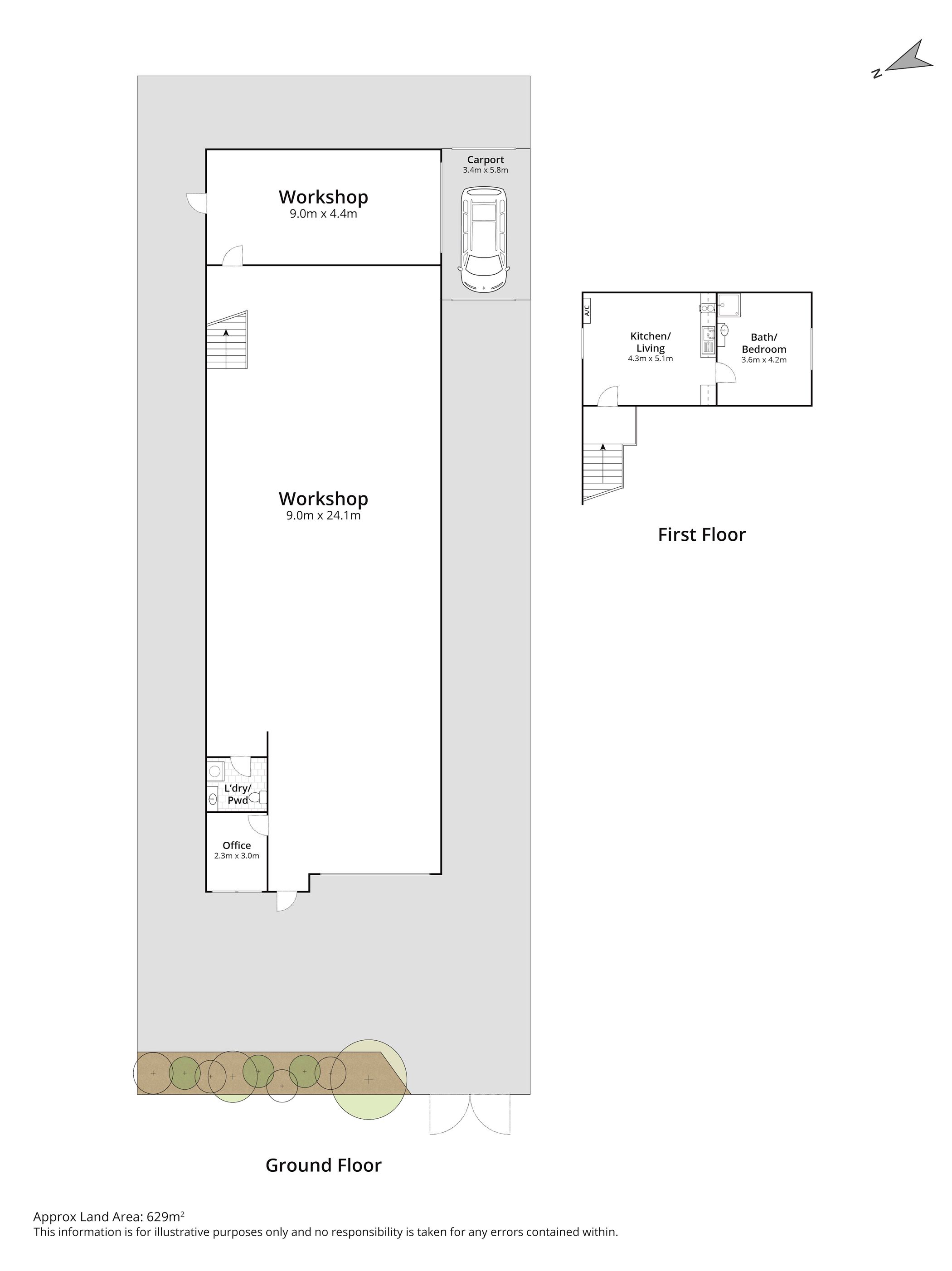
Located in one of Geelong's most tightly held industrial precincts, 31 Nobility Street, Moolap presents an outstanding opportunity to secure a versatile warehouse facility in a well-connected location.
Offering a total land area of 629m², the property is well-suited to owner-occupiers, investors, or trade-based businesses seeking a functional base. The warehouse features a clear-span interior with excellent internal height and is supported by bathroom and kitchenette amenities for added convenience.
Key Features:
- Total land area: 629m²
- Total building area: 260m2 (Approx)
- Zoned Industrial 1 Zone (IN1Z)
- Clear-span warehouse with high clearance
- Includes bathroom and kitchenette facilities
- Flexible layout to suit a variety of uses
- Easy access to Portarlington Road, Bellarine Highway & Geelong CBD
- Located within a tightly held and well-established industrial precinct
Positioned moments from Portarlington Road, with direct access to major arterials and the Bellarine Peninsula, the property offers outstanding logistical advantages. With limited availability in this established pocket of Moolap, this is a rare chance to acquire a high-quality industrial holding in a consistently high-demand area.
For further details or to arrange an inspection, contact the team at Gartland.



















