Close
Triple-Tenanted Asset in Prime Pakington Street Location
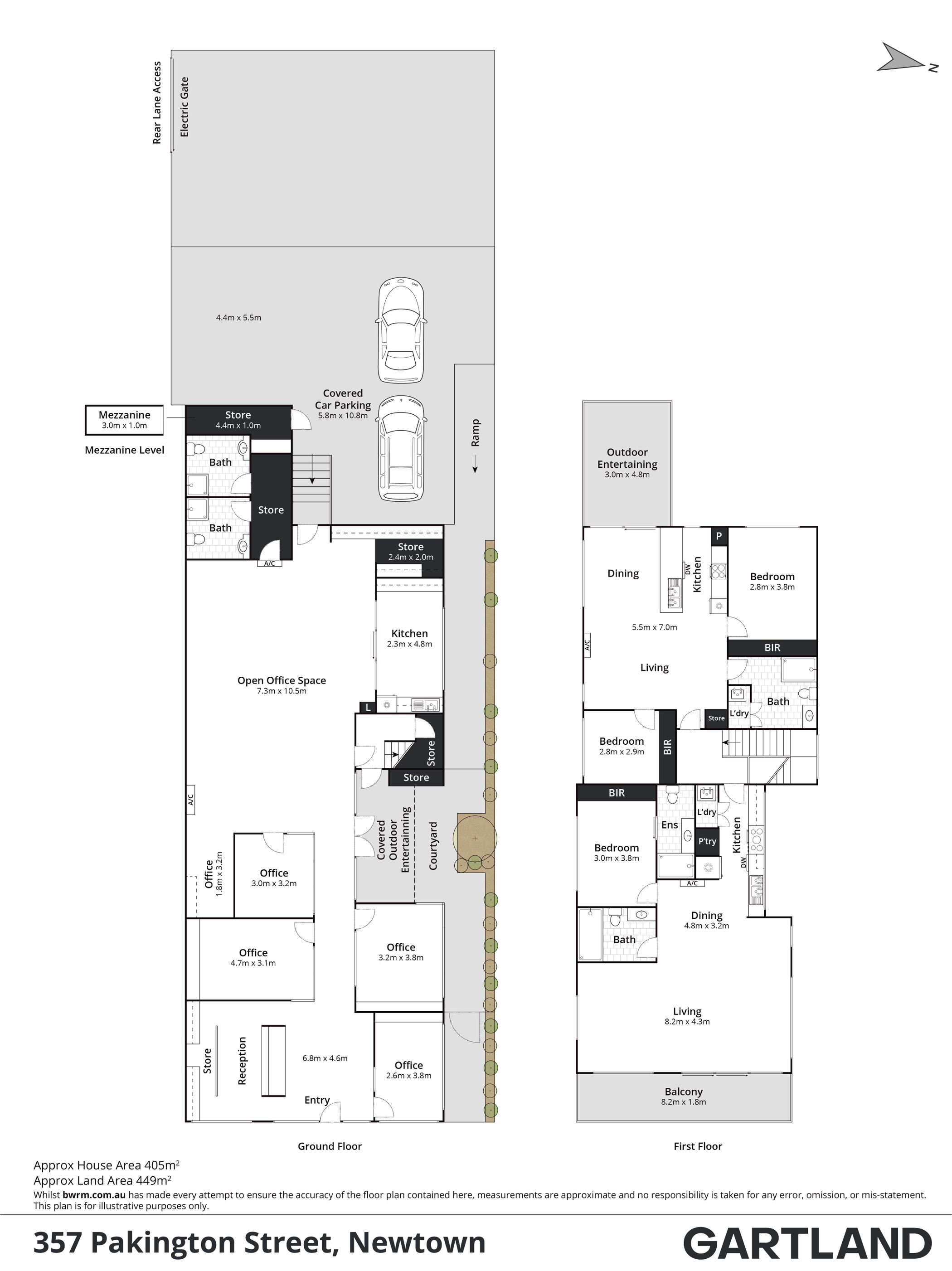
Positioned in the vibrant 'Chilwell' retail precinct, this high-performing commercial property offers a rare chance to secure a diversified, income-generating asset with long-term upside. Spread across three separate titles, 357 Pakington Street delivers a combined net rental income of approx. $213,576 p.a. from three established tenancies.
- Mixed-Use Flexibility: Immaculate ground-floor commercial office paired with two residential apartments, currently adapted for office use.
- Reliable Income Stream: Three long-term tenants in place, offering immediate returns and stability.
- Premium Location: Surrounded by thriving retail, dining, and professional services, with excellent access to major arterials.
- Dual Frontage & Parking: Street access from both Pakington Street and rear laneway, with onsite car parking for convenience.
- Significant Landholding: 449m² of land with a 405m² building footprint, zoned Commercial 1.
Whether you're expanding your portfolio or seeking a low-maintenance asset in a proven location, this property delivers the fundamentals investors look for: security, versatility, and future growth potential.

























