Close
Rare Double Fronted CBD Investment In Hospitality Hot Spot
• New 5 Year Leases To 2 Quality Tenants
• Impressive Fully Renovated Building
• Sought After High Traffic Location
Gartland in conjunction Fitzroys with are delighted to offer this immaculate fully leased freehold investment at 41 Gheringhap Street and 9 Downes Lane, Geelong for sale via Expressions of Interest closing Wednesday 13th November at 3pm.
This substantial property comprises two street frontages and is leased to two highly successful, well established tenants on brand new leases with fixed annual rental increases, providing scope for excellent capital growth.
Key attributes include:
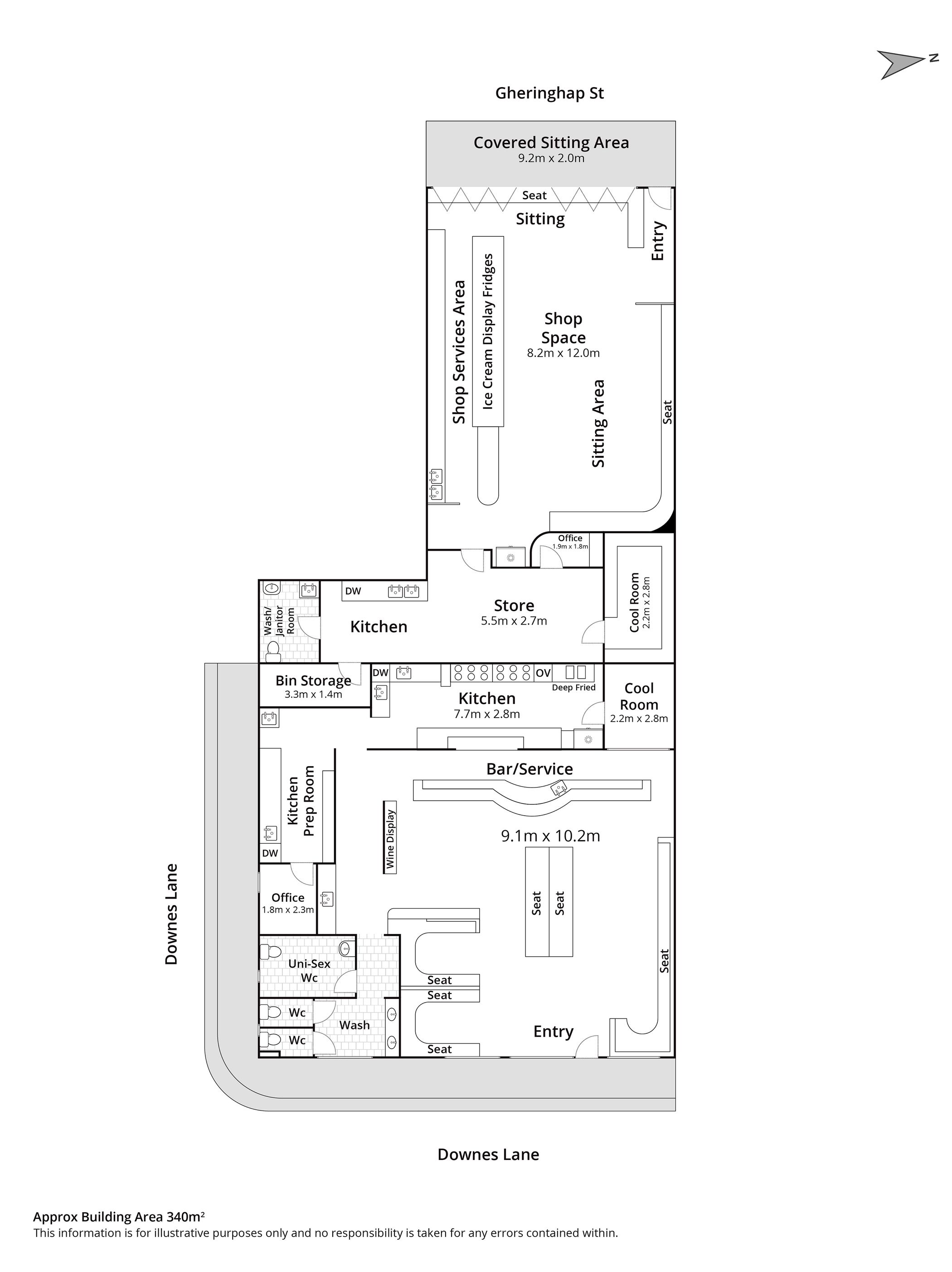
- Significant landholding of 369sqm*
- Fully renovated building of 340sqm* encompassing two separate tenancies on one title
- Dual frontage to Gheringhap Street (9.17 metres*) and Downes Lane (14.63 metres*)
- Fully leased to 2 quality tenants and returning $125,000 per annum plus GST
- New 5 + 5 + 5 year lease to Augustus Gelatery (32 stores across Victoria)
- New 5 + 5 + 5 year lease to Felix Restaurant (4.9 Google star reviews)
- Prime CBD location within Little Malop Street's famous retail/hospitality precinct providing high foot traffic trading conditions
- Surrounded by established eateries including Alma, The Arborist, The Eureka Hotel, Osteria Fiorenza, Caruggi and many more
- Close to traffic generators including the headquarters of TAC, NDIS and WorkSafe along with Geelong Library & Heritage Centre, Geelong Gallery, Deakin University, St John of God Hospital and the Geelong Courts
- Excellent future value add potential (STCA)
For further information or an inspection of 41 Gheringhap Street and 9 Downes Lane, Geelong, please contact selling agents Adam Farrell and Michael De Stefano of Gartland or Chris Kombi and Lewis Waddell of Fitzroys.
*approx.

































