Close
For Sale or Lease - Versatile Freehold in South Geelong
Gartland is pleased to offer for sale or lease 413 Yarra Street, South Geelong.
Key Details:
Positioned on the fringe of the Geelong CBD, this well-maintained and adaptable property presents a rare opportunity to secure a quality freehold asset in one of the city's most convenient locations.
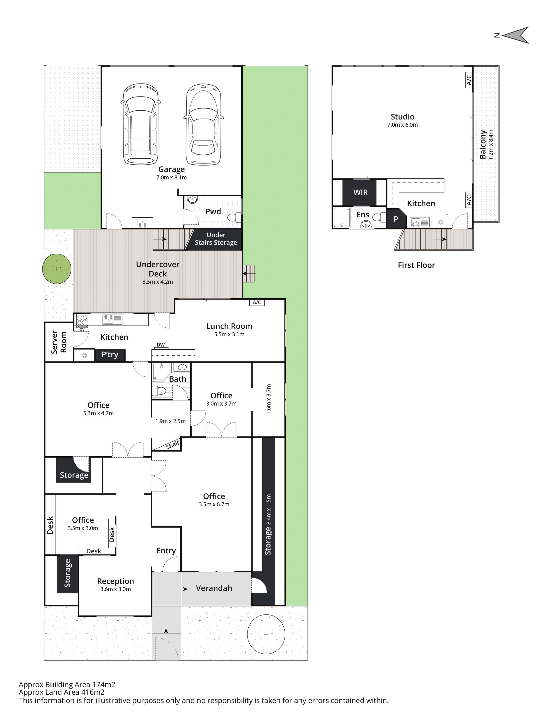
413 Yarra Street offers the perfect balance of character, functionality, and flexibility. The property's layout allows for a variety of uses including medical, allied health, professional offices, consulting suites, or creative studios, while also offering potential for future redevelopment (STCA).
The building comprises four well-proportioned offices, a welcoming reception area, kitchenette and amenities, and a standalone studio at the rear-ideal for additional workspace or subletting potential. Three off-street car parks provide ease of access for staff or clients.
Benefiting from excellent street exposure and proximity to key amenities such as the South Geelong Train Station, GMHBA Stadium, and central Geelong, this property combines accessibility with long-term growth potential.
Whether you're an owner-occupier seeking an established professional base, an investor looking for a flexible asset, or a tenant wanting a convenient, ready-to-go space, 413 Yarra Street is an opportunity that fits every brief.
For more information or to schedule a viewing, contact us today.



















