Close
Unparalleled quality in high exposure location
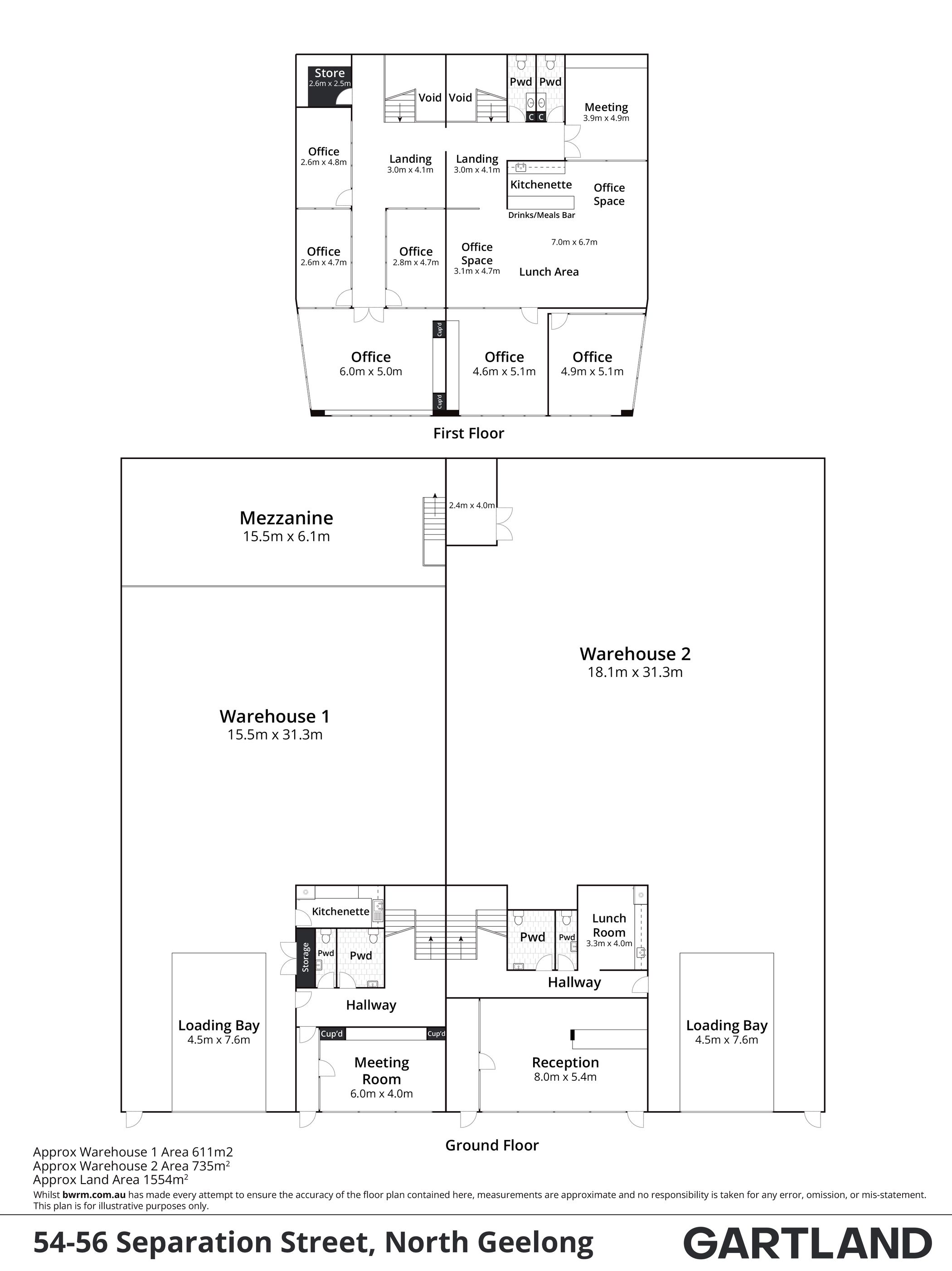
Welcome to 54-56 Separation Street North Geelong! This impressive industrial/warehouse property is now available for sale, offering a rare opportunity for investors and business owners alike.
Situated on a generous land area of 1554 sqm, the property consists of two warehouses with building areas of 611sqm and 735sqm, providing ample space for a variety of commercial activities. The building features high ceilings, large roller doors, and plenty of natural light, making it an ideal workspace for manufacturing, storage, or distribution purposes.
Located in the heart of North Geelong, this property enjoys easy access to major transport links, including the Princes Highway and the Geelong Ring Road. It is also conveniently located within close proximity to local amenities such as cafes, shops, and public transport.
Key features include:
• High clearance roller door
• Easy access to Thompson & Melbourne Roads
• Modern architecturally designed warehouse and offices
• Industrial 1 Zone
This property represents a fantastic investment opportunity for those looking to expand their commercial portfolio or establish a new business venture. Don't miss out on this rare chance to secure a prime industrial property in a highly sought-after location.
Contact us today to arrange an inspection and discover the potential of this outstanding property.

























