Close
Ground Floor Opportunity in Prime Geelong CBD Location
Gartland are pleased to offer for lease the Ground Floor of 37 Malop Street, Geelong.
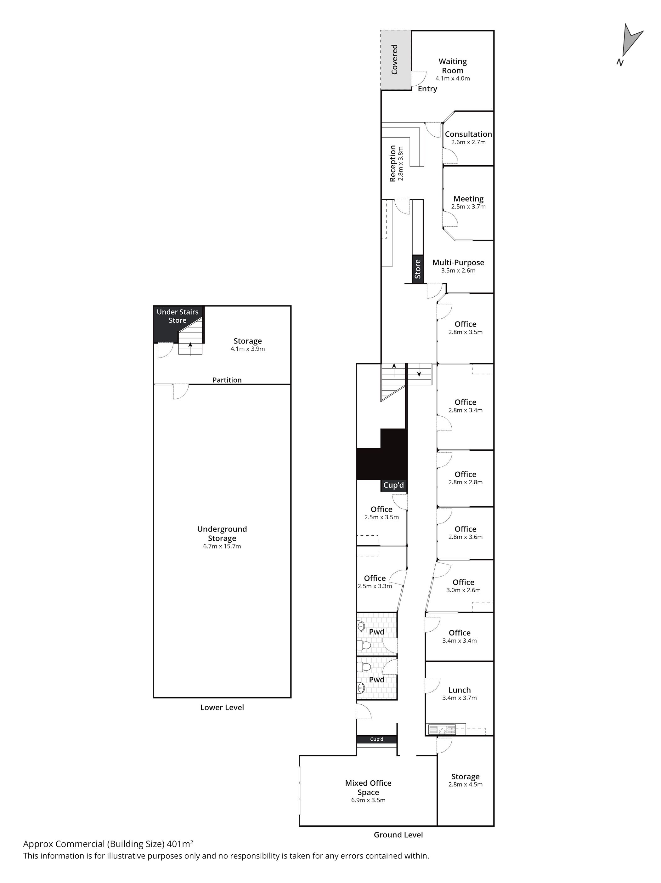
Positioned on the bustling Malop Street corridor, this high-exposure ground floor space offers 401 sqm* of versatile area - ideal for businesses seeking a bold street presence in one of Geelong's most active commercial zones.
Key Features:
• 401 sqm of prime ground floor space* - ideal for showroom, retail, medical, office or studio use
• Expansive glass frontage - incredible visibility to foot and vehicle traffic
• Modern interior fit-out with open-plan flexibility and high ceilings
• Full HVAC (heating/cooling) throughout
• Kitchenette, storage, and private amenities included
• Onsite parking available, subject to lease terms
• Rear access
Ideal For:
• Allied health / medical
• Retail showroom
• Creative studios
• Corporate office HQ
• Education or training providers
For more information or to schedule a viewing, contact us today.
*Approximate















