Close
Investment Opportunity: High-Exposure Retail Property in Geelong
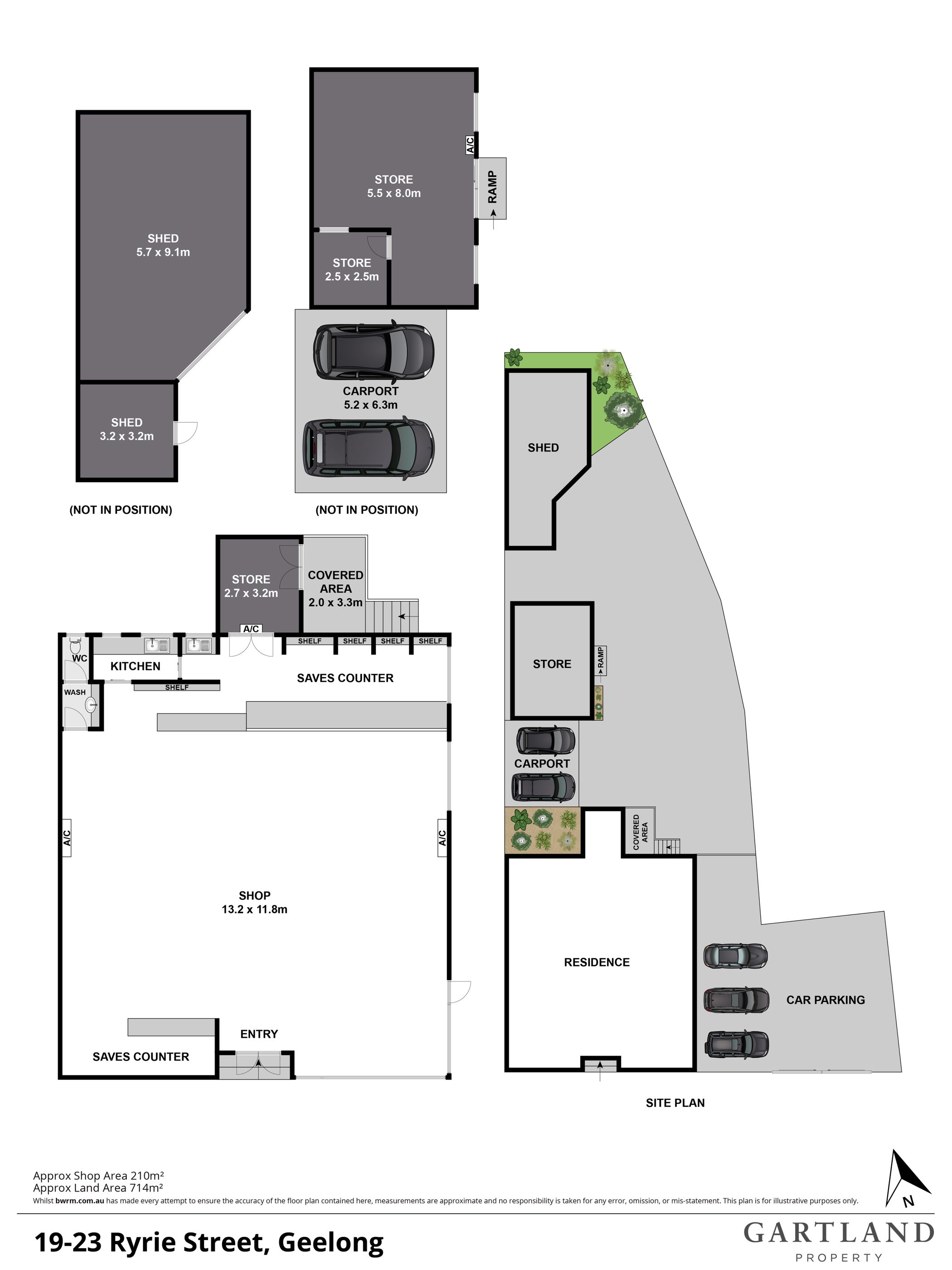
Gartland are pleased to offer for sale the freehold of 19-23 Ryrie Street, Geelong.
Comprised of 714sqm of land in Activity Center Zone 1 and 162sqm of building, this property is ideally positioned in a high exposure area. With exceptional exposure and significant future development potential, it represents an outstanding opportunity for investors and developers.
Currently leased to a national retailer for $76,107.48 per annum + GST + Outgoings, the tenant has committed to a 3-year lease.
Whether you're looking to capitalize on the secure returns or unlock the future potential of this sought-after location, this property presents unparalleled opportunities for growth.
Property Features:
• Land Area: 714sqm
• Build Area: 162sqm
• National Retailer - Chemist Warehouse
• Passing Rent: $76,107 PA + GST + Outgoings
• Lease Term: 3 Years Starting June 2025
• Excellent Long Term Tenant
For more information or to schedule a viewing, contact us today.




















