Close
Prime Commercial 2 Zone Opportunity with Existing Building
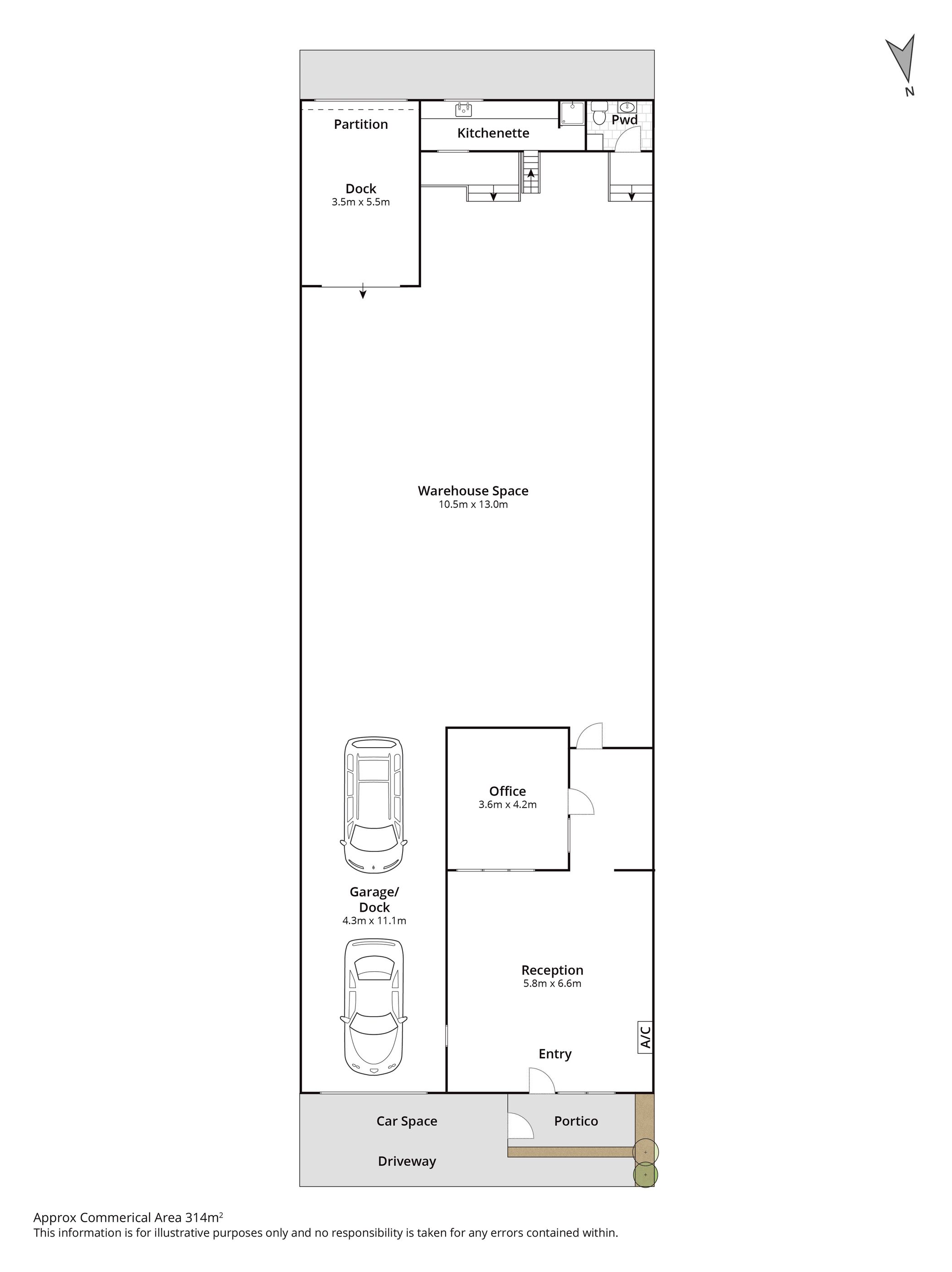
Gartland is excited to offer 39 West Fyans Street, Newtown, For Sale
• Excellent development opportunity
• Land dimensions 10.77 X 35.44m = 380 sqm approx
• Existing Build area: 330 sqm approx
• Commercial 2 Zoning
Positioned in one of Geelong's most prestigious and tightly held suburbs, this prime development site in Newtown offers an exceptional opportunity for developers, investors, or owner-occupiers looking to secure a foothold in a blue-chip location.
Boasting an existing building on-site, the property provides immediate potential for renovation, repositioning, or complete redevelopment (STCA). Surrounded by established successful businesses, thriving retail strips, top-tier schools, and excellent transport links, the site benefits from strong demand and long-term capital growth.
Key Features:
• Existing structure suitable for immediate use or reconfiguration
• Located in high-profile Newtown, one of Geelong's most desirable suburbs
• Substantial landholding with flexible development potential (STCA)
• Proximity to Pakington Street shopping and dining precinct
• Take advantage of Newtown's ongoing growth and demand for well-located, commercial developments.


















